Manual

2-12
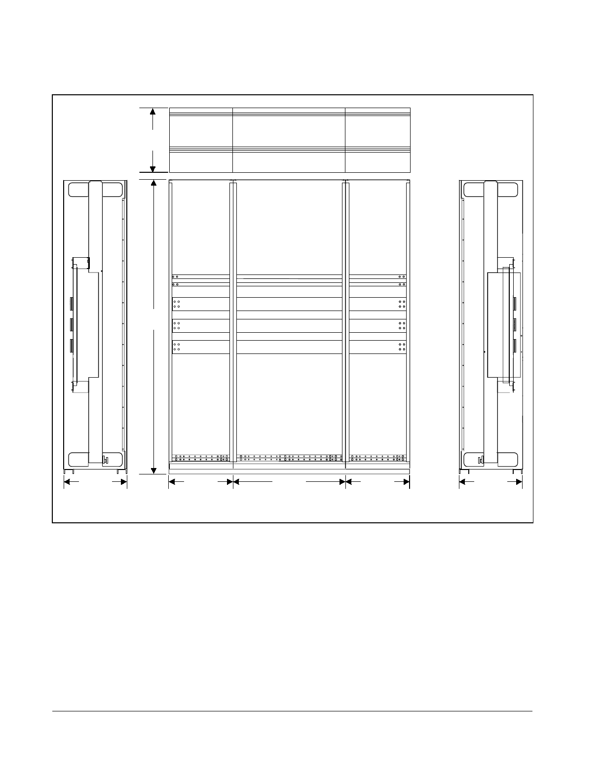
SD3100 Power Modules
2.3.2 1250A Power Module Dimensions
For other details on the 1250A Power Module and its components, please refer to the
appendices of this manual.
Figure 2.6 – 1250A Power Module Dimensions
35 inches
(889 mm)
91.5 inches
(2324 mm)
20 inches
(508 mm)
20 inches
(508 mm)
20 inches
(508 mm)
20 inches
(508 mm)
20 inches
(508 mm)