Manual

2-10
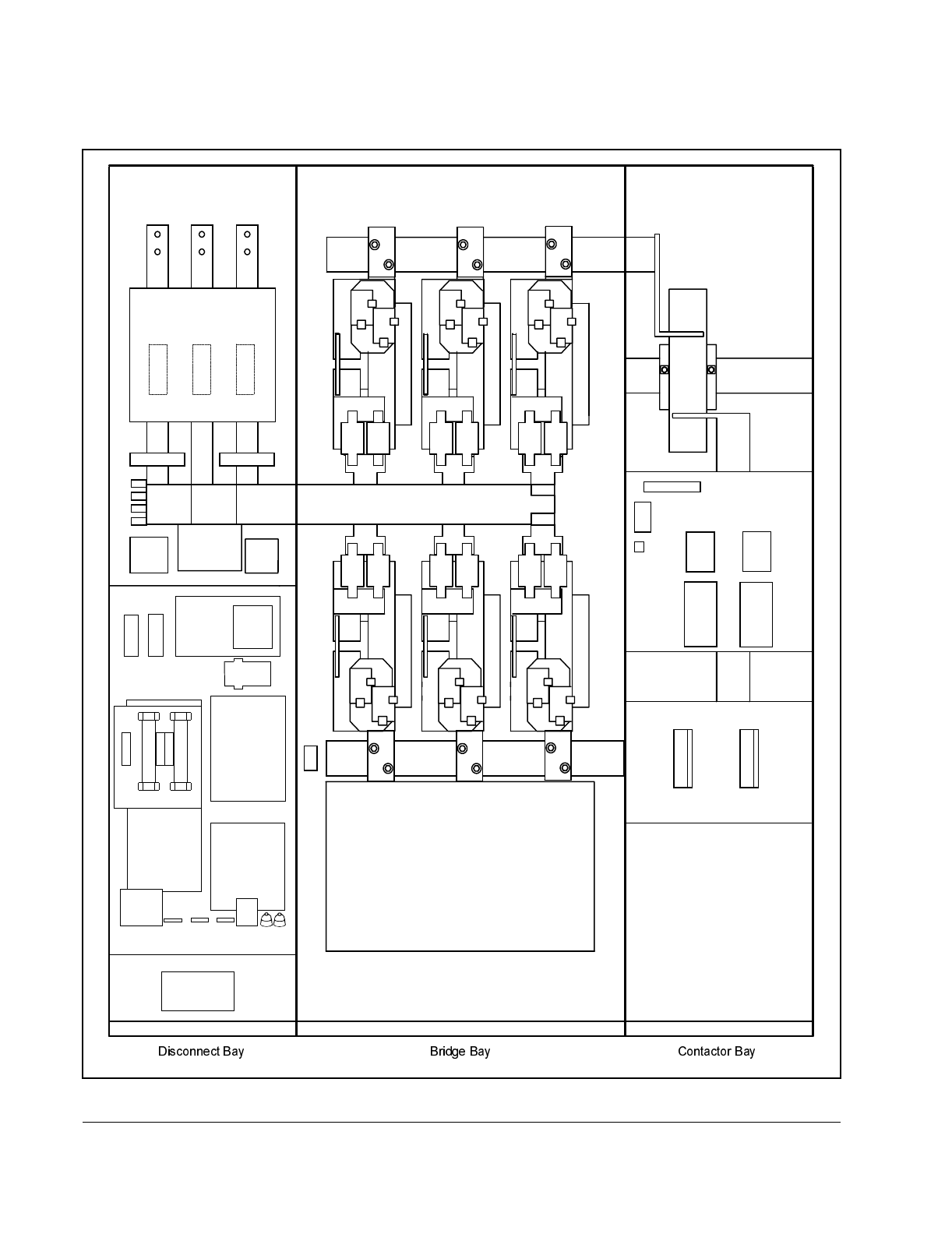
SD3100 Power Modules
2.3.1 1250A Power Module Component Layout
Figure 2.5 – 1250A Power Module Component Layout
M1
L1 L2 L3
A2(-)
A1(+)
F1,
F2,
F3
SP1
SP2
SP3
SP4
EA4
F31,
F32,
F33
F17,
F18,
F19
M11
R1
D1
MP
F9 F9A
F8
F8A
F7
F7A
F12
F12A
F11 F11A F10
F10A
TB1-
FAN
ACT1 ACT3
PP1 PP2 PP3
PP4 PP5 PP6
A14F
A11R
A16F
A13R
A12F
A15R
A14R
A11F
A16R
A13F
A12R
A15F
F27,
F28,
F29
M12
F51*
F52*
F53*
CB11*
or
PT2
*
*
*
*
*
*
FU-A
FU-B
SCALING
UNIT
TB1
PMI
RACK
PGA
RACK
FIELD
SUPPLY
TB2
TB6
TB3
TB4
TB5
FWD
REV
F14 F15
F16
F14 F15