Manual

Diagnostics and Troubleshooting
4-13
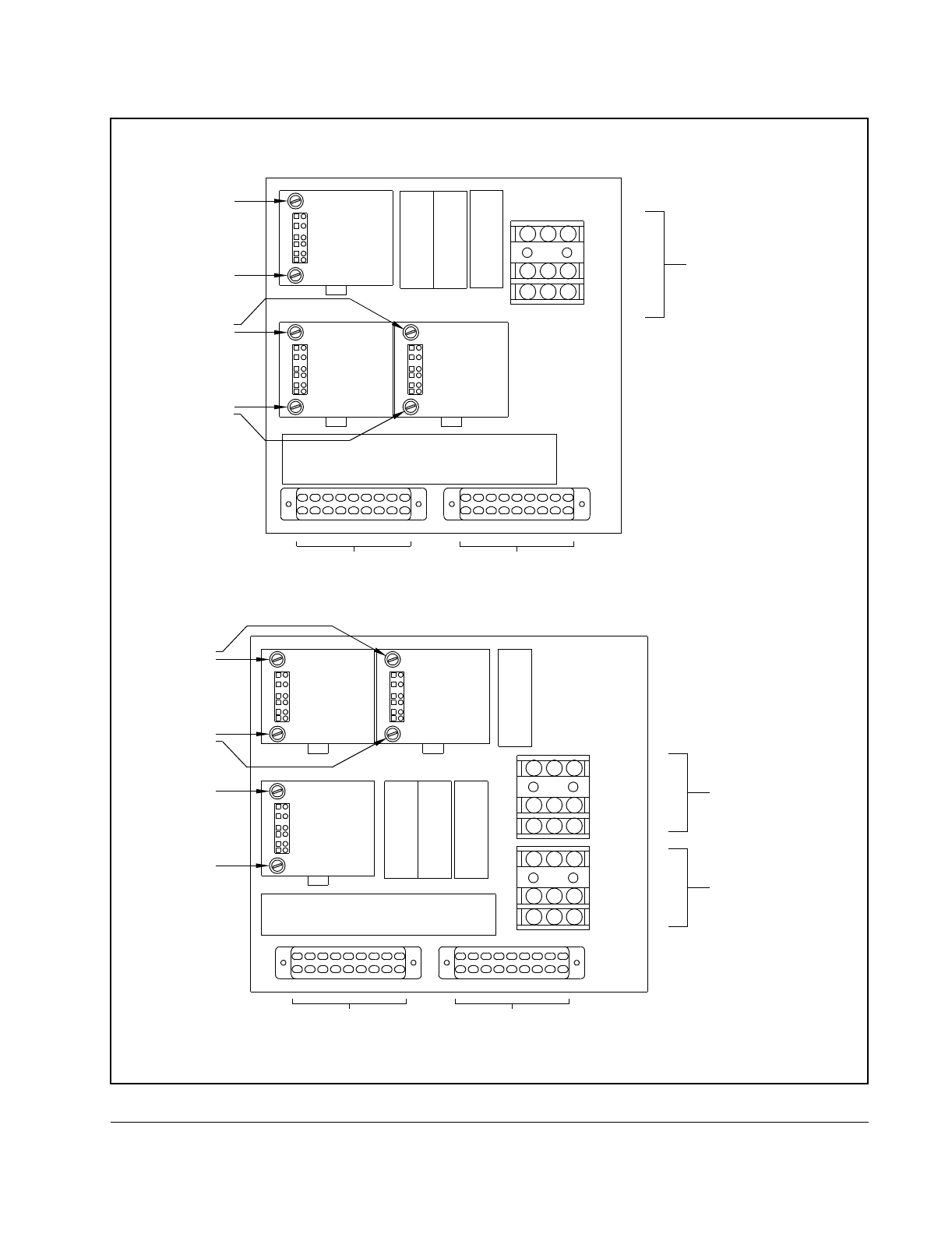
Figure 4.5 – 115VAC Control Power Supply Assemblies
NON-CRITICAL
CRITICAL
TERMINAL BOARD
115 VAC INPUT
115 VAC INPUT
TERMINAL BOARD
TERMINAL BOARD
115 VAC INPUT
850100-3S ASSEMBLY
850100-3R ASSEMBLY
CB1
L1
L2
L1A
1L1A
1L2
1L1
L1A
L2
L1
3FU
1FU
±15V
+24V
PS
PS
-24V
PS
CB1
NON-CRITICAL (FAN) 115VAC
1QD 2QD
+24V
PS
-24V
PS
±15V
PS
CRITICAL (PMI/PS) 115VAC
L1
N
+15
0
0
-15
L1
N
24
0
1.8A F
L1
N
24
0
2.0A F 2.0A F
2.5A T 2.5A T
OUT-
OUT+
OUT
IN
CRITICAL (PMI/PS) 115VACNON-CRITICAL (FAN) 115VAC
1QD 2QD
OUT+
OUT-
1.8A F
1.8A F
IN
OUT
2.5A T 2.5A T
2.0A F
2.0A F
OUTPUT TB OUTPUT TB
-15
0
0
+15
N
L1
0
24
N
L1
0
24
N
L1
1.8A F
3FU
1CB1
1FU
(1)
(1)
(2)
(3)
(2)
(3)
(1)
(1)
Notes 1,2,3. See table 4.5 for fuse specifications.