Manual

4-12
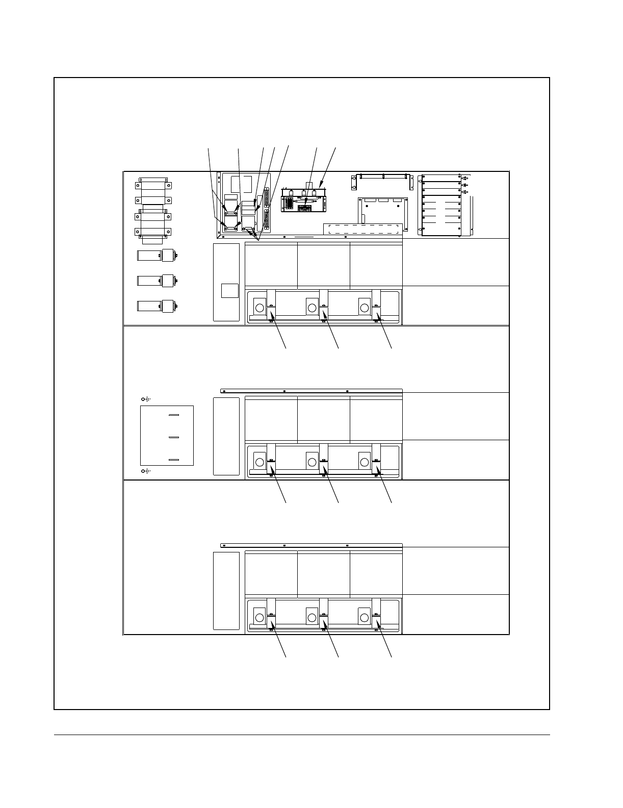
High Power SA3000 AC Power Modules
Figure 4.4 – 1457A SA3000 Power Module Fuse Locations
LPI MODULE
PCB
SYNC
LINE
F103A
F104A
F105A
PHASE W
PHASE V
PHASE U
PHASE W
PHASE V
PHASE U
PHASE W
PHASE V
PHASE U
POWER MODULE C
POWER MODULE B POWER MODULE A
PWR. MOD. C
G
D
I
SLOT 8
PRE-CHARGE ASSEMBLY
ASSEMBLY
PRE-CHARGE ASSEMBLY
BLOWER
BLOWER
25KHZ PS
G
D
I
G
D
I
PWR. MOD. B
PWR. MOD. A
SLOT 7
SLOT 6
PRE-CHARGE ASSEMBLY
ASSEMBLY
PMI RACK
CB1
±15V
PS
3FU
1FU
1CB1
PS
+24V
PS
-24V
BLOWER
ASSEMBLY
1FU
3FU
BANK
CAPACITOR
BANK
CAPACITOR
CAPACITOR
BANK
11FU, 12FU
F105B
F104B
F103B
F105C
F104C
F103C
21FU-26FU
Notes 1,2,3. See table 4.5 and figure 4.5
Note 4. See table 4.5 and figure 4.6.
(2)
(3)
(1)
(4)
(4)
DISCONNECT SWITCH
(REAR)
(FRONT)
F102CF102A F102B
F101CF101BF101A
F
P
M
A
GRD
MOTOR
GRD
MOTOR
W
VU
AC MOTOR OUTPUT
F
P
M
B
F
P
M
C