Manual

Diagnostics and Troubleshooting
4-11
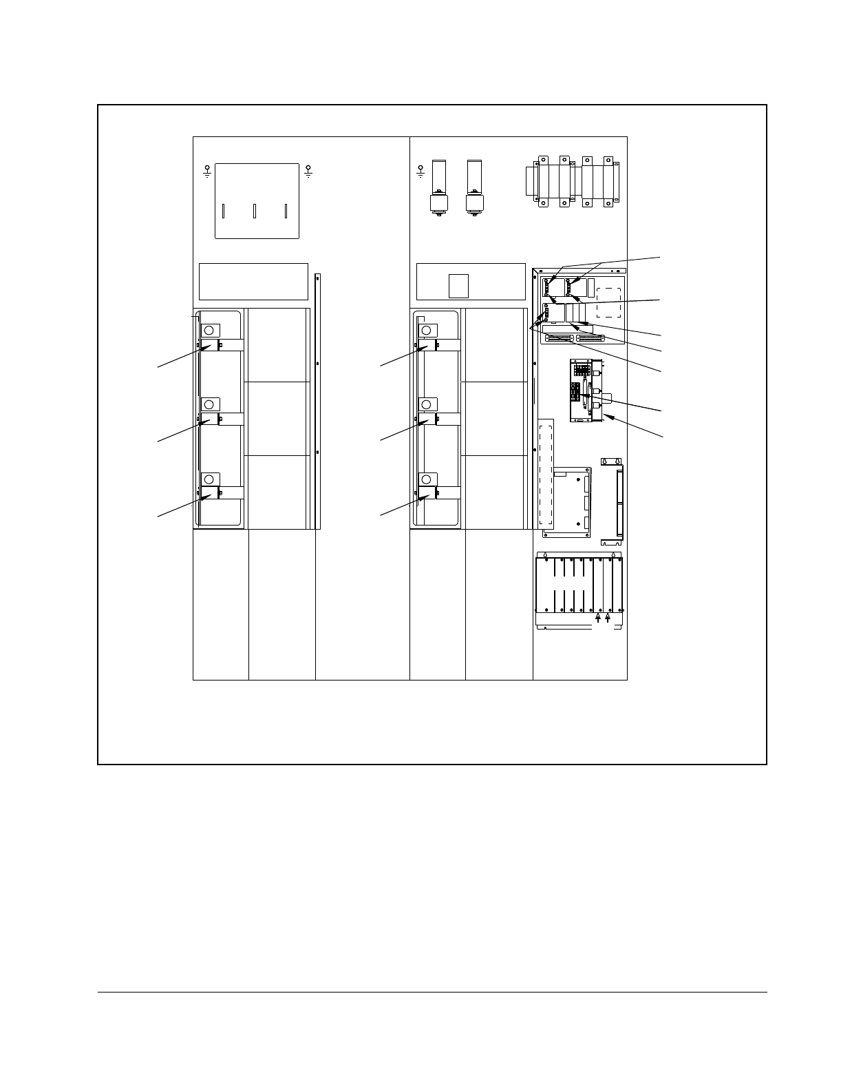
Figure 4.3 – 972A SA3000 Power Module Fuse Locations
LPI
MODULE
PCB
SYNC
LINE
POWER MODULE B
PHASE W
PHASE V
PHASE U
PHASE W
PHASE V
PHASE U
POWER MODULE A
PMI RACK
ASSEMBLY
PRE-CHARGE ASSEMBLY
SLOT 6
SLOT 7
PWR. MOD. A
PWR. MOD. B
GDI
GDI
25KHZ PS
BLOWERBLOWER
PRE-CHARGE ASSEMBLY
ASSEMBLY
CB1
3FU
1FU
±15V
PS
1CB1
+24V
PS
-24V
PS
F105B
F104B
F103B
F105A
F104A
F103A
21FU-26FU
11FU, 12FU
3FU
1FU
CAPACITOR
BANK
CAPACITOR
BANK
Notes 1,2,3. See table 4.5 and figure 4.5
Note 4. See table 4.5 and figure 4.6.
(2)
(3)
(1)
(4)
(4)
DISCONNECT SWITCH
FPMB
FPMA
F101A
F101B
F102B
F102A
(FRONT)
(REAR)
AC MOTOR OUTPUT
U V W
MOTOR
GRD
MOTOR
GRD GRD
MOTOR