Manual

4-10
High Power SA3000 AC Power Modules
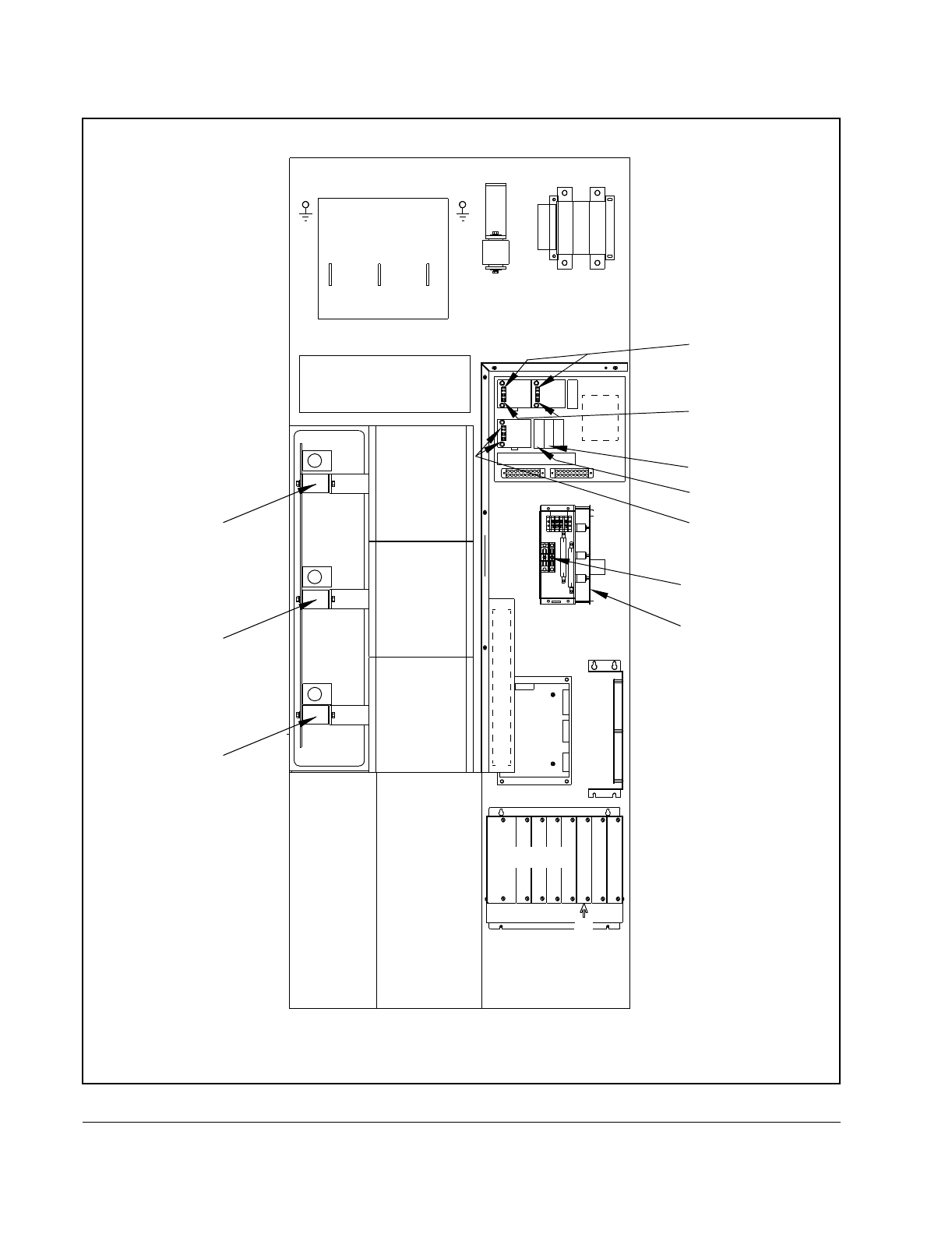
Figure 4.2 – 534A SA3000 Power Module Fuse Locations
(4)
(4)
LPI
MODULE
LINE
SYNC
PCB
BANK
CAPACITOR
C
B
1
±15V.
PS
3
F
U
1
F
U
±15V.
PS
1
C
B
1
PS
+24V.
PS
-24V.+24V.
PS
-24V.
PS
POWER MODULE A
PHASE U
PMI RACK
ASSEMBLY
PHASE W
PHASE V
PRE-CHARGE ASSEMBLY
SLOT 6
PWR. MOD. A
GDI
25KHZ PS
BLOWER
F105A
F104A
21FU-26FU
11FU, 12FU
(2)
3FU
1FU
F103A
(3)
(1)
Notes 1,2,3. See table 4.5 and figure 4.5
Note 4. See table 4.5 and figure 4.6.
DISCONNECT SWITCH
FPMA
F101A
F102A
(FRONT)
(REAR)
GND
MOTOR
GND
MOTOR
UV
W
AC MOTOR OUTPUT