Manual

Diagnostics and Troubleshooting
4-3
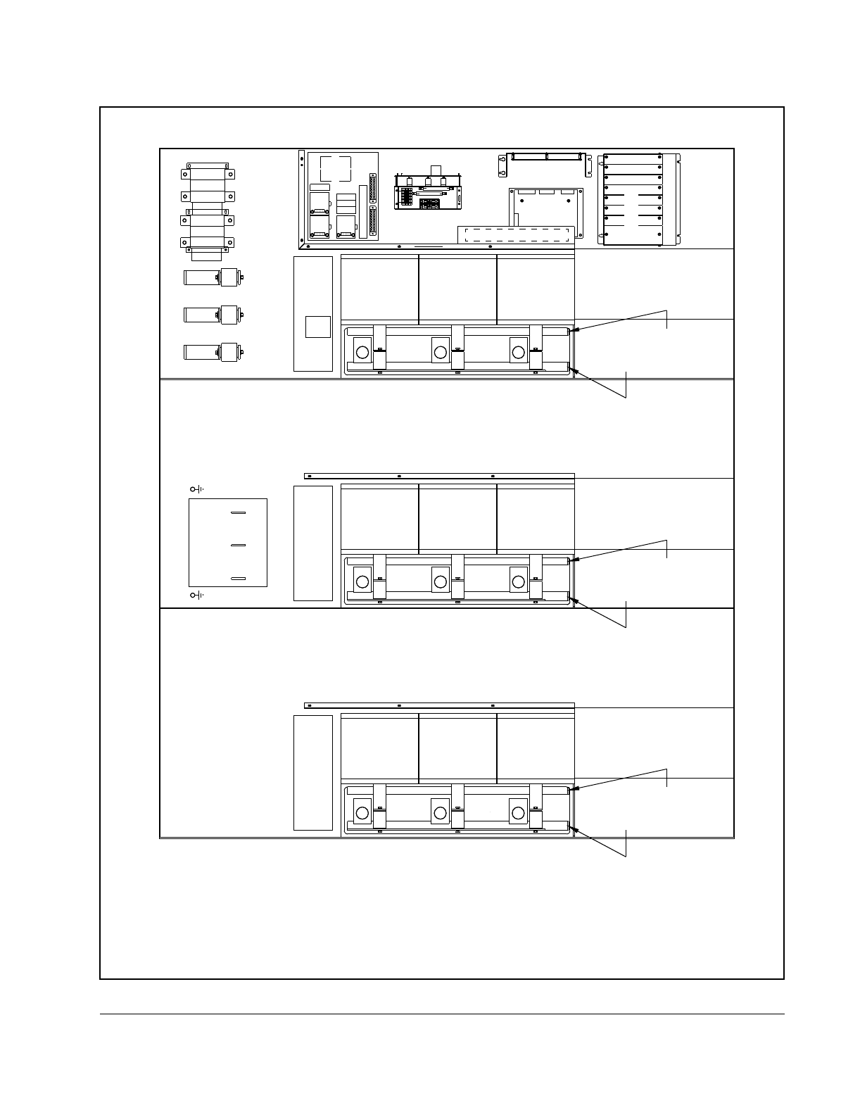
Figure 4.1 – DC Bus Voltage Measuring Points
L
P
I
MODULE
AC LINE SYNC
PCB
SYNC
LINE
POWER MODULE A
BANKCAPACITOR
BANK
CAPACITOR
BANK
CAPAC
ITOR
-BUS
345C
+BUS
347C
PHASE W
PHASE V
PHASE U
PHASE W
PHASE V
PHASE U
PHASE W
PHASE V
PHASE U
POWER MODULE C
POWER MODULE B
PRE-CHARGE ASSEMBLY
ASSEMBLY
PRE-CHARGE ASSEMBLY
BLOWER
BLOWER
-
+
-
+
25KHZ PS
PRE-CHARGE ASSEMBLY
ASSEMBLY
P
M
I
R
A
C
K
CB1
3FU
1FU
±15V
PS
1CB1
PS
-24V
+24V
PS
BLOWER
ASSEMBLY
-BUS
345B
+BUS
347B
-BUS
345A
+BUS
347A
DISCONNECT SWITCH
F
P
M
A
GRD
MOTOR
GRD
MOTOR
W
VU
AC MOTOR OUTPUT
F
P
M
B
F
P
M
C