Manual

Installation Guidelines
3-5
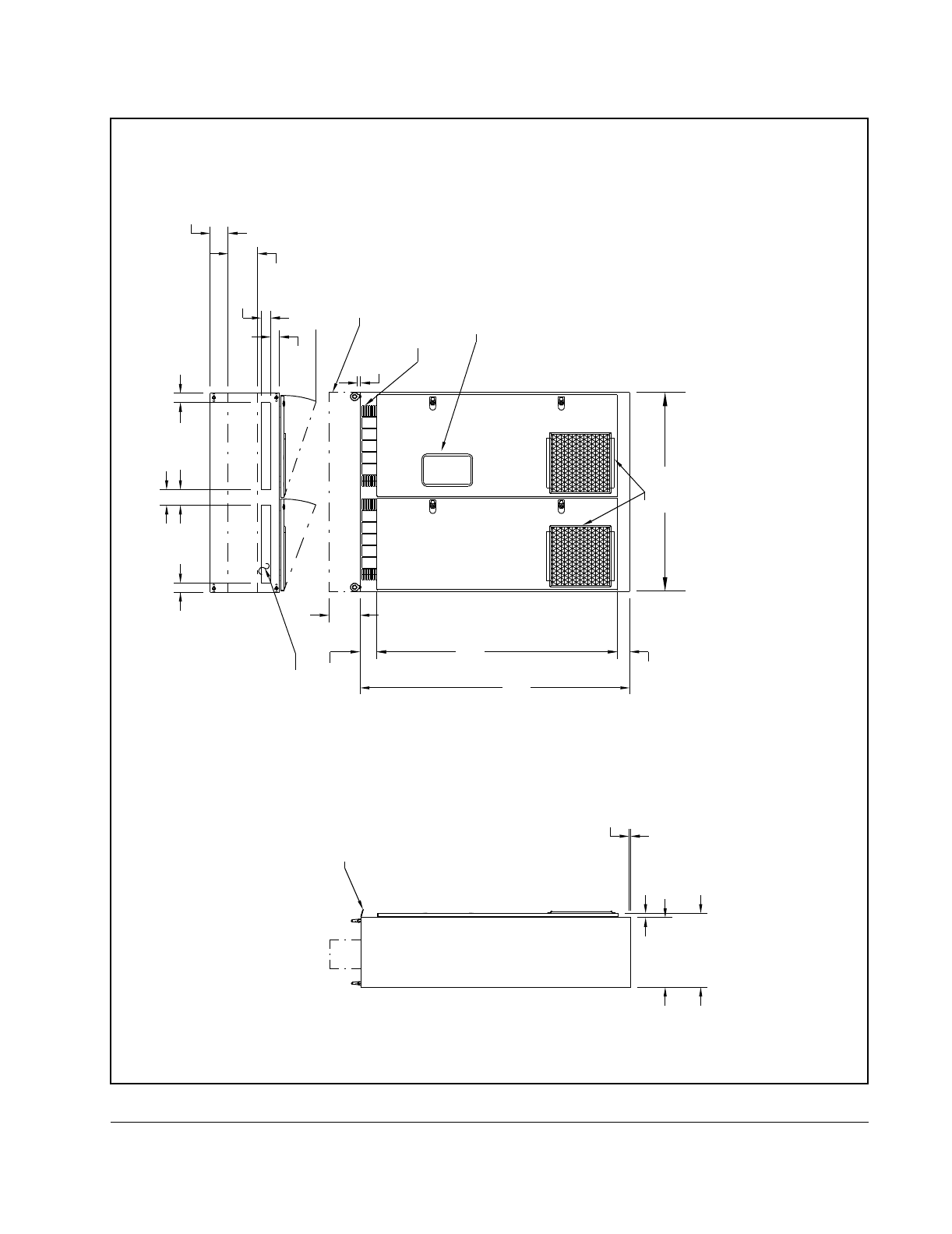
Figure 3.2 – 972A Power Module Mounting Dimensions (Double-Bay)
*
64.00
DRIP SHIELD
(IF USED)
METER LOCATION IN DOOR
OUTLINE OF OVERHEAD ENCLOSURE
(127.0)
(711.2)
25.00
(101.6)
(241.3)
2.875
RH DOOR WIDTH = 32.75 (831.9)
1.OO (25.4) MAX
FILTER & FAN
(1625.6)
(101.6)
(1965.5)
(2203.5)
86.75
77.37
5
.
3
8
(73.0)
(148.6)
(76.2)
(635.0)
(76.2)
LENGHT 1.50 (38.1)
MTG STUD - MIN
(34.8)
(568.5)
(603.3)
(
1
3
6
.
7
)
VENT SLOTS
CONDUIT PLATES PROVIDED
AVAILABLE CONDUIT
ENTRY AREA IN HOOD.
CONDUIT PROTRUSION
DOOR SWING = 120°
LH DOOR WIDTH = 29.5 (749.3)
23.75
22.38
1.37
.50 D (12.7)
4.00
3.00
28.00
5.00
3.00
5.85
4.00
9.50
WEIGHT = 2175 LBS (985 KG)
DC TOP HAT ENCLOSURE INSTALLED
COMMON DC BUS ENCLOSURE INSTALLED - 10.00 (254.0).
ADDITIONAL HEIGHT:
ALL DIMENSIONS ARE IN INCHES (MILLIMETERS)
*
- 19.00 (482.6).