Manual

3-4
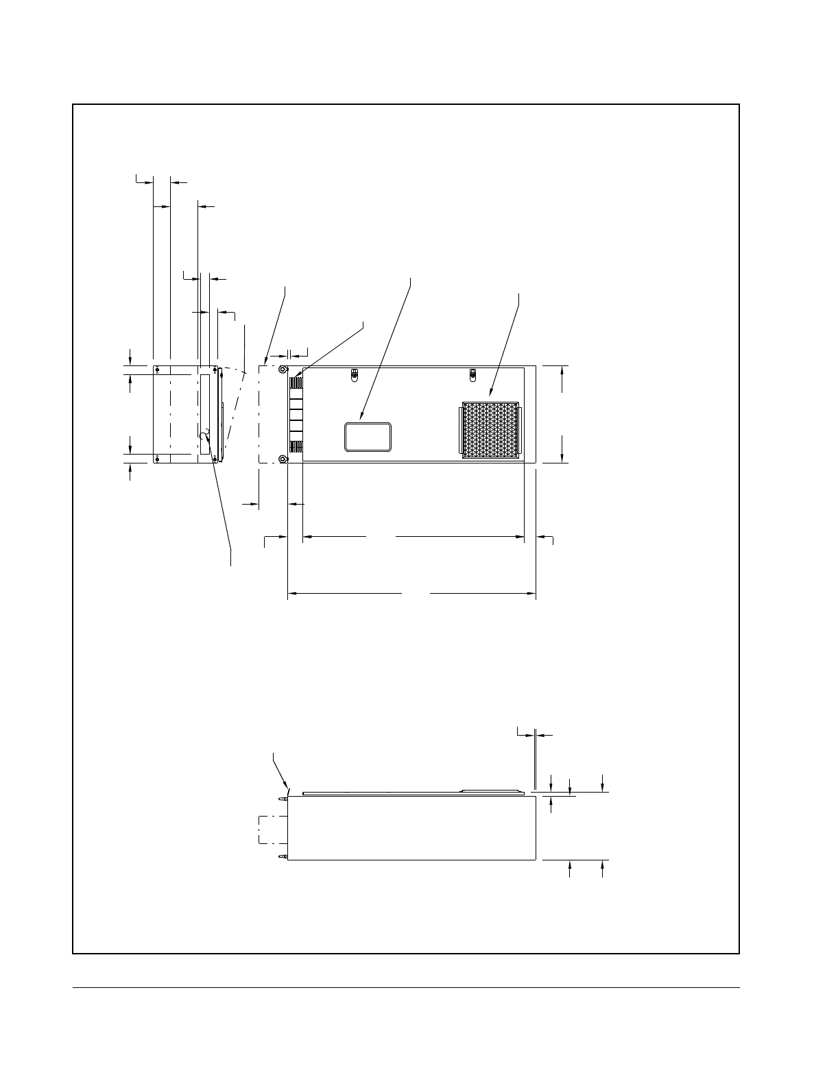
High Power SA3000 AC Power Modules
Figure 3.1 – 534A Power Module Mounting Dimensions (Single-Bay)
(
7
3
.
0
)
WEIGHT = 1265 LBS (573 KG)
DRIP SHIELD
(IF USED)
METER LOCATION IN DOOR
2
.
8
7
5
(101.6)
FILTER & FAN
*
OUTLINE OF OVERHEAD ENCLOSURE
1.00 (25.4) MAX
(148.6)
(241.3)
(1965.5)
77.38
(136.7)
5.38
4.00
86.75
(76.2)
(711.2)
(76.2)
(863.6)
(101.6)
(2203.5)
(34.8)
(568.5)
(603.3)
AIR EXHAUST SLOTS
CONDUIT PLATE PROVIDED
AVAILABLE CONDUIT
ENTRY AREA IN HOOD.
CONDUIT PROTRUSION
LENGTH 1.50 (38.1)
MTG STUD - MIN
DOOR SWING = 120°
DOOR WIDTH = 32.75 (831.9)
1.37
22.38
23.75
5.85
3.00
28.00
3.00
4.00
9.50
34.00
.50 D (12.7)
DC TOP HAT ENCLOSURE INSTALLED
COMMON DC BUS ENCLOSURE INSTALLED - 10.00 (254.0).
ADDITIONAL HEIGHT:
ALL DIMENSIONS ARE IN INCHES (MILLIMETERS)
*
- 19.00 (482.6).