Manual

Mechanical/Electrical Description
2-11
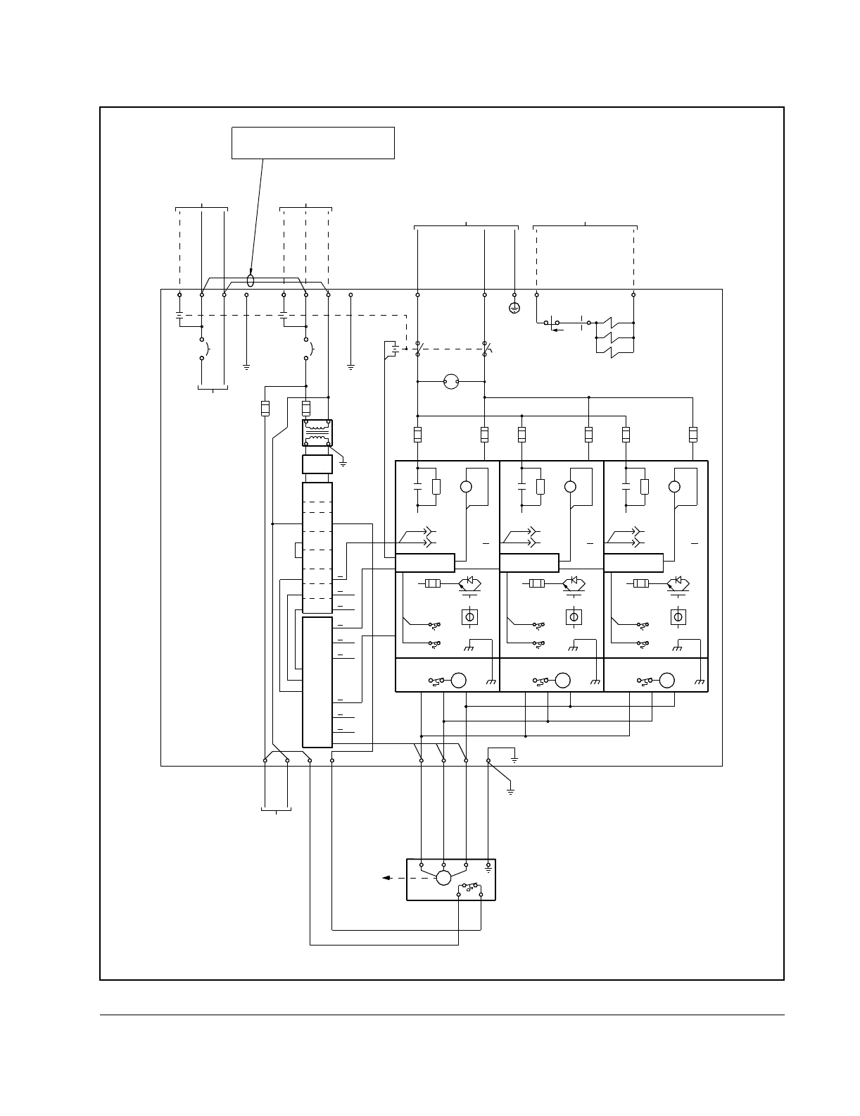
Figure 2.7 – 1457A SA3000 Power Module Circuitry
C
B
1
1
C
B
1
(OPTIONAL)
P
R
E
C
H
A
R
G
E
(
O
P
T
I
O
N
A
L
)
TO
BELOW
BLOWERS
(OPTIONAL)
0-1000 VDC
(OPTIONAL)
DISCONNECT
DC BUS
X
X
X
L
1
A
X
X
X
1
L
2
X
X
X
1
L
1
X
X
X
1
L
1
A
DISTRIBUTION
115VAC FROM A-C
IS USED FOR THE PMI RACK.
WHEN A SEPARATE 115 VAC SUPPLY
NOTE: THESE JUMPERS ARE REMOVED
SUPPLY DISTRIBUTION
FROM CRITICAL 115VAC
CONDITIONED POWER
DISTRIBUTION
115VAC FROM A-C
X
X
X
G
R
D
TO
THERM
M
MOTOR
UV
W
G
P1 P2
X
X
X
W
X
X
X
V
X
X
X
U
X
X
X
P
1
X
X
X
P
2
GRD
Y
Y
Y
4
7
Y
Y
Y
4
5
800VDC FROM SB3000
ON SHEET YYY
X
X
X
L
X
X
X
N
115VAC
RESOLVER
TO DRIVE
I/O CARD
K
1
1
A
R
K
1
1
A
K
1
1
B
R
R
K
1
1
B
K
1
1
C
K
1
1
C
FROM 115VAC
SOLENOIDS
DOOR
BYPASS
INTERLOCK
D1
S.R.
D3
W
W
W
D
1
(
R
E
D
)
D2
W
W
W
D
2
(
R
E
D
)
Y
Y
G
R
D
(+)
(-)
1L11L1A 1L2
GRD
47 45
GRD
SA3000
INVERTER
F
1
0
2
B
F
1
0
1
B
F
1
0
2
A
F
1
0
1
A
BOARD
PRE-CHARGE
DRIVERS
GATE
XMT
RCV
F103A-105A
ORG
BLU
5
.
0
A
3
F
U
1
F
U
25A
CON1
A
LEM
CON5
LEM
LEM
GDI
GDI
GDI
CON1
CON1
A
C
B
CARD
LPI
C
B
GDI
GDI
GDI
B
C
A
L
NP1P2 U V
GRD
W
LEM
BLOWER ASSEMBLY
FAULT
M
BLOWER ASSEMBLY
FAULT
M
WARNING
F103B-105B
WARNING
BOARD
LEM
BLOWER ASSEMBLY
FAULT
M
WARNING
F103C-105C
BOARD
LEM
C
F
1
0
2
C
F
1
0
1
C
PRE-CHARGE
DRIVERS
XMT
RCV
ORG
BLU
GATE
B
PRE-CHARGE
DRIVERS
GATE
XMT
RCV
ORG
BLU
A
PARA
TECH
POWER
I/O
DRIVE
P/S
PROC
LINE
FILTER
RACK
PMI
2
5
0
V
A
3
.
2
A
INTER
L1A
25A
L2L1
GRD
W
W
W
I
V
L
1
W
W
W
I
V
L
2
W/D 30395-13