Manual

2-8
High Power SA3000 AC Power Modules
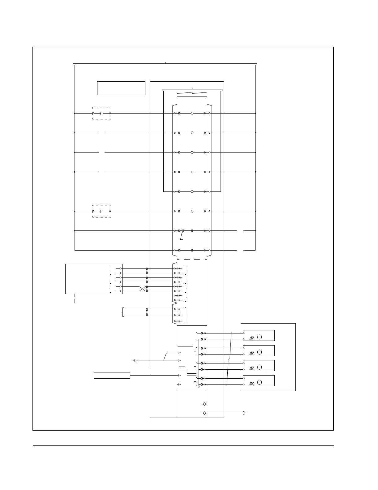
Figure 2.4 – Drive I/O and Processor Card Detail
MOUNTED TO CABINET DOOR
OPTIONAL METER PACKAGE
ANALOG
AC
AC
STARTER FEEDBACK
BLOWER MOTOR
MOTOR THERMOSTAT
RUN PERMISSIVE
INTERLOCK
2RPI
(LO)
B
(C3)
DRIVE I/O
RPI
A
B/M O-60031
AUX
(LO)
IN1
4
D
6
IN2
AUX
C AUX IN1
(C3-P2)
(LO)
AUX
F
8
IN3
(LO)
J
E
AUX IN2
H
AUX IN3
IN4
AUX
(LO)
L
10
IN5
AUX
12
K AUX IN4
N
(LO)
R
14
MCR
M AUX IN5
MCRP
OFF-DELAY AFTER
0.5 SECOND
(LO)
1RPI
(HI)
AUX
(HI)
IN1
3
5
IN2
AUX
(HI)
AUX
7
IN3
(HI)
9
IN4
AUX
(HI)
11
IN5
AUX
(HI)
13
MCR
(HI)
FROM T.B. (P2 & N)
OUT
AUX
(LO)
T
16
S AUX OUT
OUTPUT
B
A
(-)
(+)
REFERENCE
(C3-P1)
SINE
COSINE
INPUT
D
(-)
(+)
E
(+)
C
INPUT
H
F
(+)
J
(-)
(-)
TRIGGER
EXTERNAL
+
(P1)
P
(+)
N
SHLD
(-)
R
B/M
PROCESSOR
O-60021
ISOLATED
(±10V=(±2047)
COM
+
COM
+
(C2)
COMM LINK
FIBER OPTIC
XMT
RCV
(P3)
2
(P2)
1
PMI RACK SLOT C5
TO PARALLEL
INTERFACE MODULE
COM
+
COM
(C4)
±10V
(P1)
PORTS
METER(P4)
PORTS
0
1
AC POWER
4
(P5)
TECH MODULE
(P1)
(P2)
B/M 60023
INTERFACE
MODULE
POWER
SYNCH XFER
3
RAIL
15
AUX
OUT
(HI)
2
1
REF. OUT(-)
REF. OUT(+)
4
3
5
7
8
6
EXT. TRIG(-)
EXT. TRIG(+)
COS INPUT(-)
COS INPUT(+)
SIN INPUT(-)
SIN INPUT(+)
1
3
2
SHIELD
ANALOG IN(-)
ANALOG IN(+)
RPI GOES "LOW"
R101_B4
R101_B1
R201_B5
R201_B4
R201_B3
R201_B2
R201_B1
R201_B0
XXX21
XXX22
XXX23
XXX24
XXX26
XXX25
XXX31
XXX32
SIGNAL
FROM
XXX11
XXX01
DRIVEN BY
(+)
FIBER OPTIC COMM. LINK
YYYL
YYYN
XXX03
XXX05
XXX07
XXX14
XXX16
BLU
ORG
DC
AC
MOTOR
FROM 115VAC
ESR
(-)
(+)
(-)
(+)
(-)
(+)
6
5
4
3
2
1
INDUSTRIAL
COSINE
SINE
REFERENCE
R2
S4
S2
(STATOR)
OUTPUT
(STATOR)
OUTPUT
(ROTOR)
INPUT
S3
S1
R1
P/N
RESOLVER
BRUSHLESS
DUTY
800123-x
BN
IN POWER MODULE
ARE MOUNTED
AUTOMATE I/O RAILS
PMI RACK AND OPTIONAL
FROM UDC CARD
FREQUENCY
CALIB
200%-0-200%
CALIB
TORQUE
MOTOR
CABLE
CALIB
120Hz-0-120Hz
0-200%
CALIB
0-600V
VOLTS
CURRENT
MOTOR
MOTOR
I/O RAIL
(IF USED)
OF POWER MODULE A
MOTOR