Manual
Manuals
Brands
Rockwell Automation Manuals
Equipment
MD60 Remote Small OIM (MDI)
1
2
3
4
5
6
MD60 / M
D65 Remote Small OIM
Installation Instructions
3
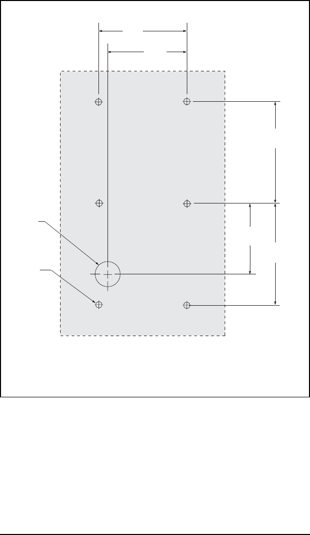
67,0
(2.63)
60,0
(2.36)
77,0
(3.03)
77,0
(3.03)
53,5
(2.11)
∅
19,1
(0.75)
∅4,
8
(0.19)
Approx
imate scal
e 1:2
Fron
t View
Vist
a Fro
nta
l
1
2
3
4
5
...
6