Manual

2
MD60 / MD65 Remote Small OIM Installation Instructions
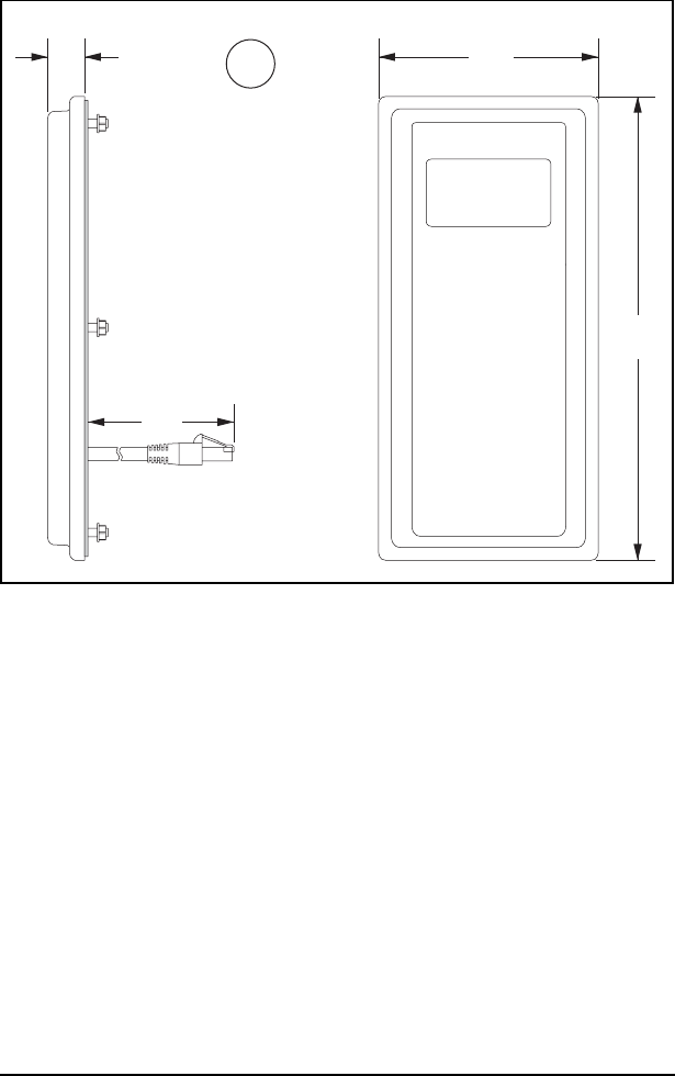
Dimensions
Dimensiones
Note: The MD4ALCD is smaller than the MD4LCD, and cannot be
used as a direct field replacement.
Nota: El MD4ALCD es más pequeño que el MD4LCD, y no se lo
puede utilizar como reemplazo directo en el campo.
93,0
(3.66)
25,0
(0.98)
2.0m
mm
(in.)
180,0
(7.08)