Owner's manual
Table Of Contents
- Front Cover
- Important User Information
- Summary of Changes
- Table of Contents
- Introduction
- About the Drive
- Identifying the Drive by Cabinet Assembly ID Number
- LiquiFlo 2.0 Drive Component Locations
- Identifying the Power Module by Model Number
- AC Line I/O Board Description (Frame 3 Only)
- Standard I/O Board Description (Frame 3 Only)
- Combined I/O Board Description (Frame 4 Only)
- DPI Communication Ports
- Optional Equipment
- Planning the Installation
- Mounting The Power Module and Grounding the Drive
- Installing Input and Output Power Wiring
- Completing the Installation
- Using the Start-up Routines
- Programming Basics
- Parameter Descriptions
- Troubleshooting the Drive
- Verify that the DC Bus Capacitors are Discharged Before Servicing the Drive
- Determining Drive Status Using the Status LEDs
- About Alarms
- About Faults
- Diagnostic Parameters
- Common Symptoms and Corrective Actions
- Replacement Parts
- Board Replacement, Firmware Setup Procedures
- Troubleshooting the Drive Using the OIM
- Checking the Power Modules with Input Power Off
- Technical Specifications
- Using the OIM
- Installing and Removing the OIM
- Display Description
- OIM Menu Structure
- Powering Up and Adjusting the OIM
- Selecting a Device in the System
- Using the OIM to Program the Drive
- Monitoring the Drive Using the Process Display Screen on the OIM
- Displaying and Changing the OIM Reference
- Customizing the Process Display Screen
- Customizing the Function Keys
- Controlling the Drive From the OIM
- LiquiFlo 2.0 Drive Frame 3 Wiring Diagrams
- LiquiFlo 2.0 Drive Frame 4 Wiring Diagrams
- Index
- Back Cover

40 Rockwell Automation Publication D2-3518-3 - May 2013
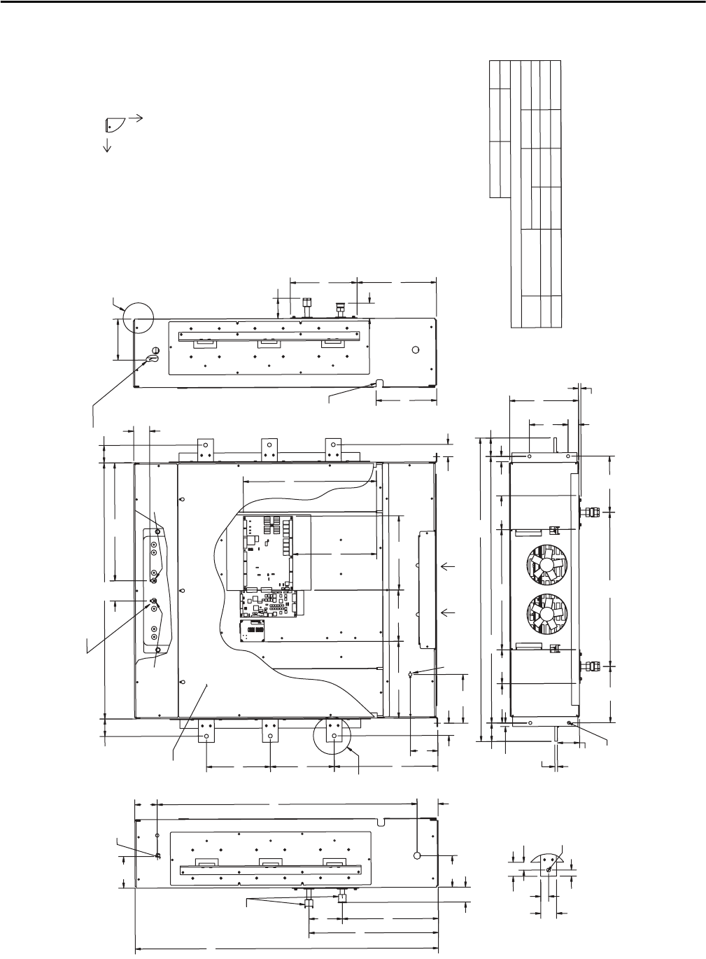
Chapter 3
Figure 17 - Power Module Dimensions - LF200900CCRand LF201215CCR (Frame 4), in.
4
8
.5
S
U
B
C
D
T
N
EM
ERUSA
E
M
S
TNI
O
P
18
.4
0
9.3
49
.
6
3
1
.
1
52
.2
00
.
2
2
1.1
8
8.
Ø65.
05.
4
99.
2
21
.
2
FO KC
A
B
MORF
OT
S
ISS
AHC
G
N
I
LA
E
S SFRO
EC
AF
R
US
98.
2
71.
2
0
3
.1
1
0
5.9
83.
5
1.3
0
5.
1
0
5.
5
1
8.9
49
.73
9
1.3
4
26
.2
2
6.2
5
7
.
1
0.8
39.
12
0
0.8
Ø
3
5
4
.
SEC
ALP
-
)4(
1
E
TON
E
ES
57.
41
9
0
.
9
90
.9
47
.
1
9
4
.
2
4
4.
63
94.2
6
7
.4
7
6.3
1
24
.8
1
4
7.
1
0
5
.4
GNIT
F
I
L
0
0
.1Ø
S
EC
A
LP-)4(
3
6.
8
06.
5
1
8.4
21.7
1
0
0
.
7
3
87
.
6188
.2
29
.
0
1
1
3.
7
8
1
.3
3
3
.
05
.
.PY
T
71.
3
4
7
2.2
6
9
.
8
1
69
.11
55.
01
GN
IR
IW LORTNO
C DLE
I
F
E
M
AN
S WERCS
IZE
ECNE
R
EFER
E
UQRO
T
EZ
I
S ER
IWH
T
GN
EL
P
IRTS
]F
BL
-
N
I[]
M
-N
[]
GW
A[
]
H
CN
I[
L
AN
I
M
R
E
T
3
M21
A26. -
5
.
8
2.
2
1 O
T 4
2
5
- 4
23
A2GN
I
T
NUO
M
3
M
6
.
-
5.5
- 4
--
REB
MUN LEDO
M
R
E
B
M
UN
TR
A
P
E
MARF
RCC
512
1
0
2FL4
0
A
-51
0
0
81
C
C4
SEE
L
I
ATE
D
A
W
E
I
V
T
NO
RF
ED
I
S
TF
ELVIE
W
REIFI
TCEREDIS RETREVNIEDIS
1L
2L
3L
1
T/
U
2T/
V
3T/
W
W
OLF
R
I
A
:YTIV
A
RG FO
RE
TNE
C
83
.
12
= X
0
5.4 =
Y
T
N
I
(
5
2
.8
1
= Z
O
ARD
FO
E
NALP
)
GN
I
W
B
L
05
4 :T
HG
IE
W
.F
S
U
B
C
DTN
E
ME
R
USAEMMAL N
O
S
TN
I
O
P
SSA
SUB
DET
AN
I.Y
EL
AM
"
2
3
0
.
X "5
2
.
ECCA
.
N
O
TSAF
G
NIVO
M
E
R YB ELBAS
S
.
R
EVOC
P
OT
M
I
O
NO
ITCENNOC
CD
.S
OP
)
+(
CD
.
GEN
)-(
LENA
P TN
O
R
F
.5
ET
O
N
E
E
S
23
A2
1
1A
2
21A
2
WEIV MOTTOB
W
E
IV
EDI
S
THGIR
TUO
IN
TN
AL
OOC
SNO
ITCEN
N
OC
SET
O
N EES
4 DN
A
3
,2
EES
LIATED
GOC
DLE
I
F
ORTNOCL
GN
I
R
IW
S
SE
C
C
A
HT
OB(
)SED
IS
TUO
IN
A
L
I
A
TED
TUO
D
N
A
T
U
PN
ITUP
E
N
N
O
C
GN
I
R
IW
N
O
I
T
C
E
L
A
CS4:
1
LI
A
TED
G
O
C
4
:
1
E
L
A
CS