Owner's manual

Table Of Contents
Rockwell Automation Publication D2-3518-3 - May 2013 39
Chapter 3
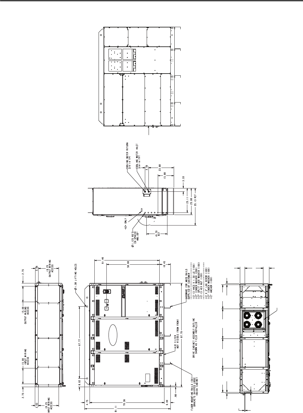
Figure 16 - Exterior Enclosure Dimensions - 180580-A07 and 180580-A09 (Frame 4), in.
4.40
16.50
5.25 REF
1.000
21.4726.4326.4321.47
1.000
0.63
TYP
0.50
TYP
BOTTOM VIEW
FILTER INSTALLED
DRIVE
PIPING
ACCESS