Owner's manual

Table Of Contents
38 Rockwell Automation Publication D2-3518-3 - May 2013
Chapter 3
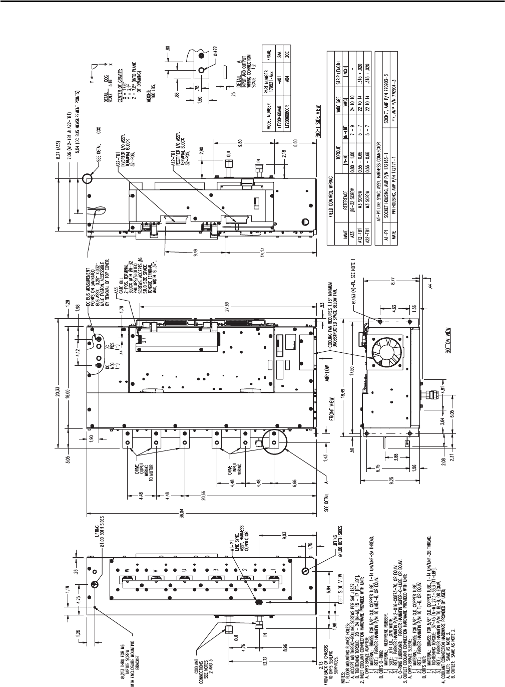
Figure 15 - Power Module Dimensions - LF200460AAR and LF200608CCR (Frame 3), in.