Owner's manual

Table Of Contents
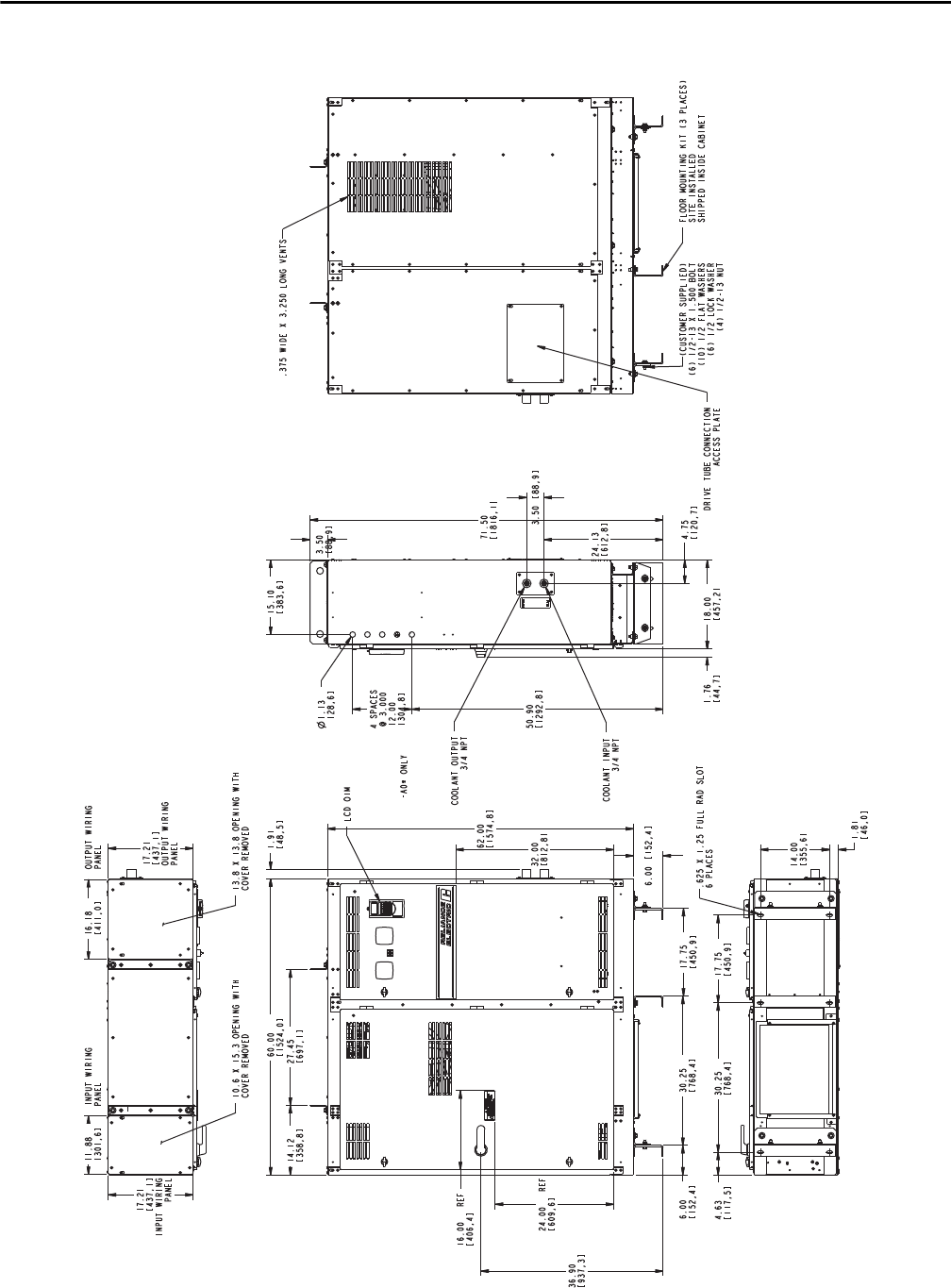
Rockwell Automation Publication D2-3518-3 - May 2013 37
Chapter 3
Figure 14 - Exterior Enclosure Dimensions - 180264-A03 and 180264-A06 (Frame 3), in. (mm)