Owner's manual

Table Of Contents
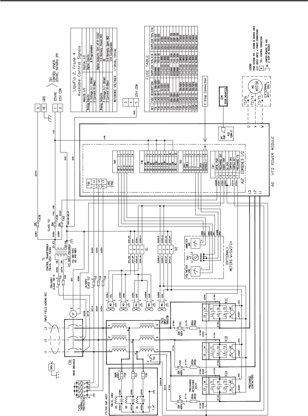
256 Rockwell Automation Publication D2-3518-3 - May 2013
Appendix D
Figure 109 - Drive Assembly Cabinet Wiring Diagram (Frame 4)