Owner's manual

Table Of Contents
Rockwell Automation Publication D2-3518-3 - May 2013 253
Appendix C
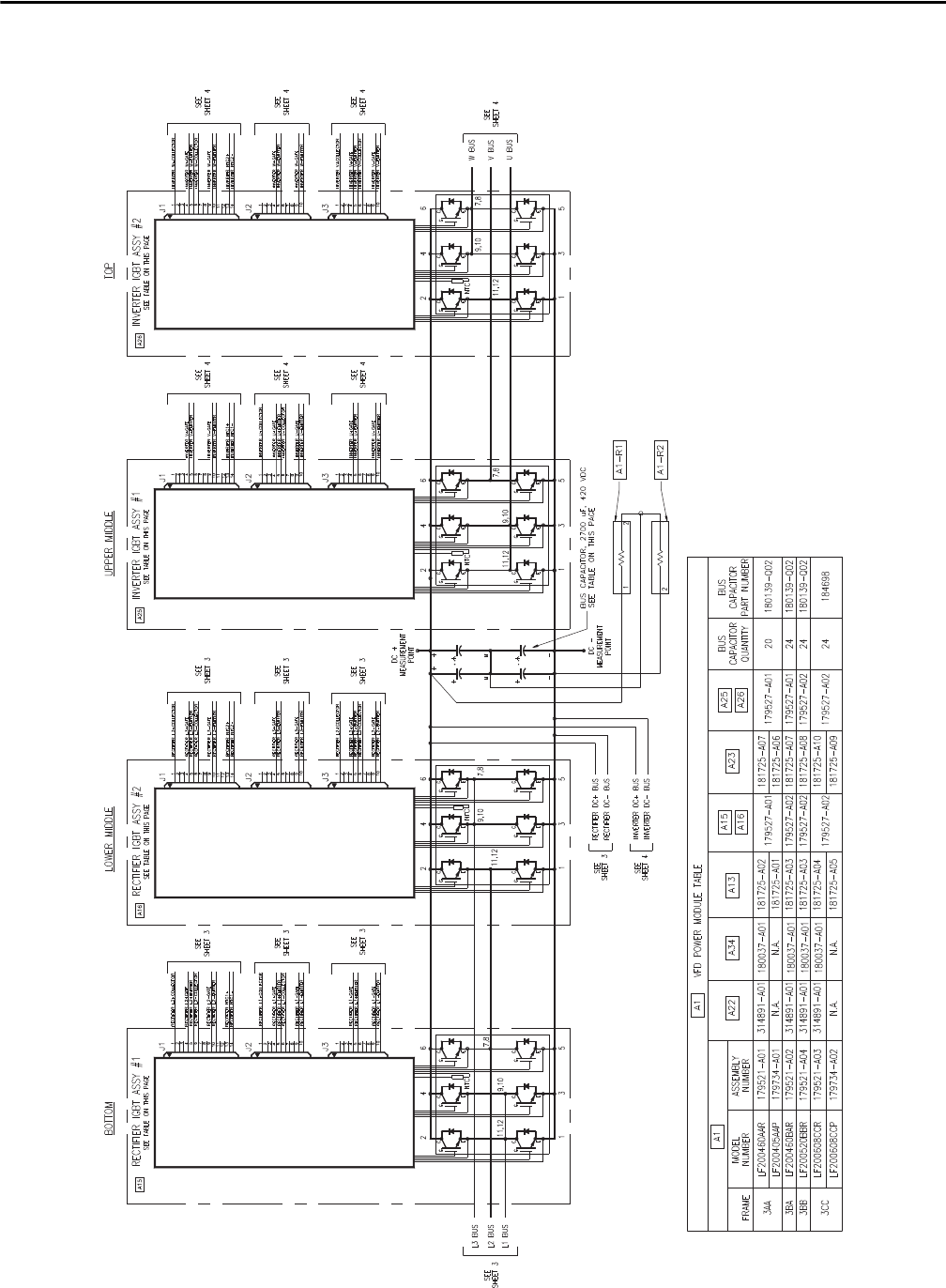
Figure 108 - Power Module IGBT Wiring Diagram (Frame 3 - sheet 5)