Owner's manual

Table Of Contents
252 Rockwell Automation Publication D2-3518-3 - May 2013
Appendix C
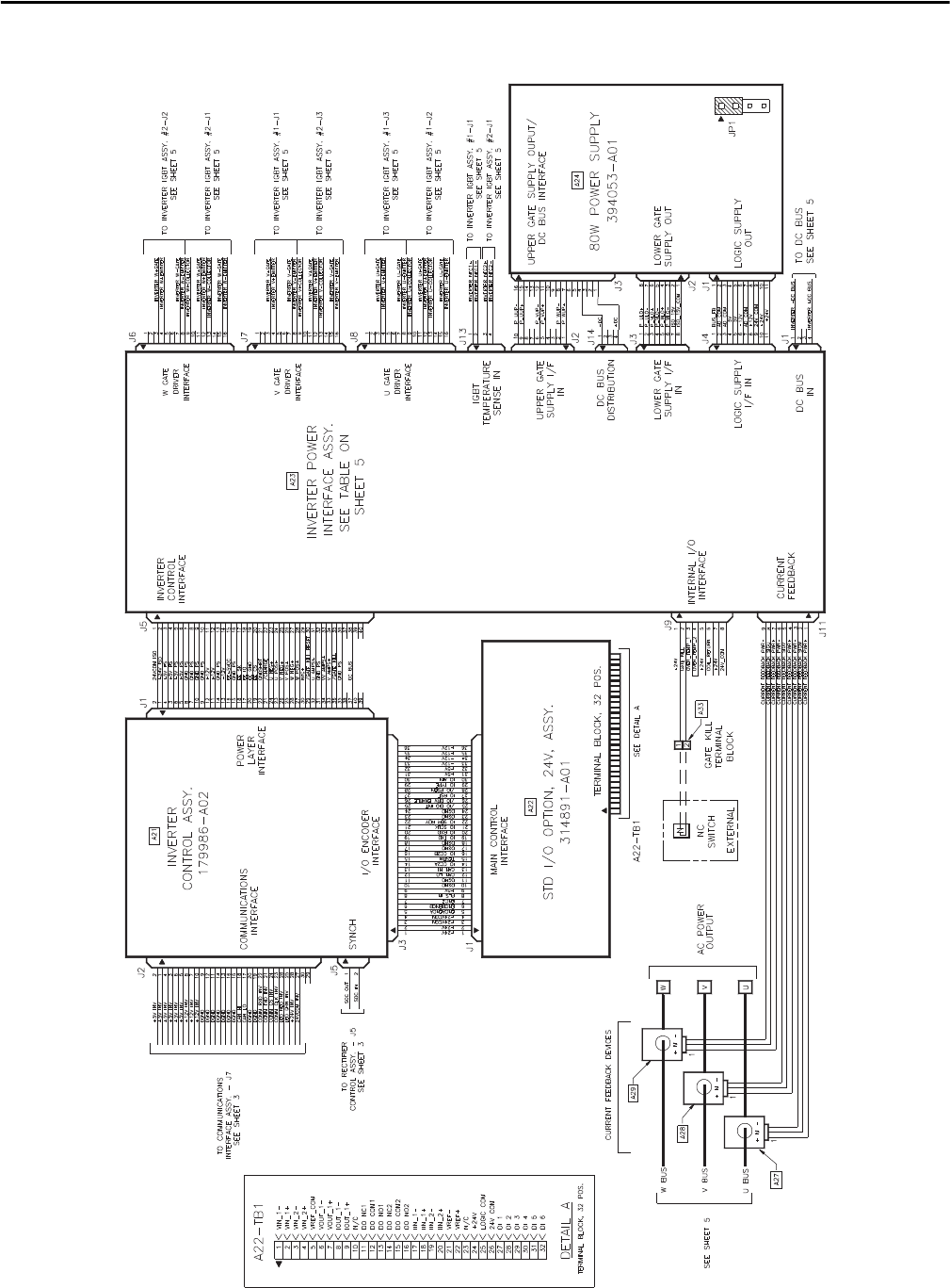
Figure 107 - Power Module Inverter Wiring Diagram (Frame 3 - sheet 4)