Owner's manual

Table Of Contents
Rockwell Automation Publication D2-3518-3 - May 2013 251
Appendix C
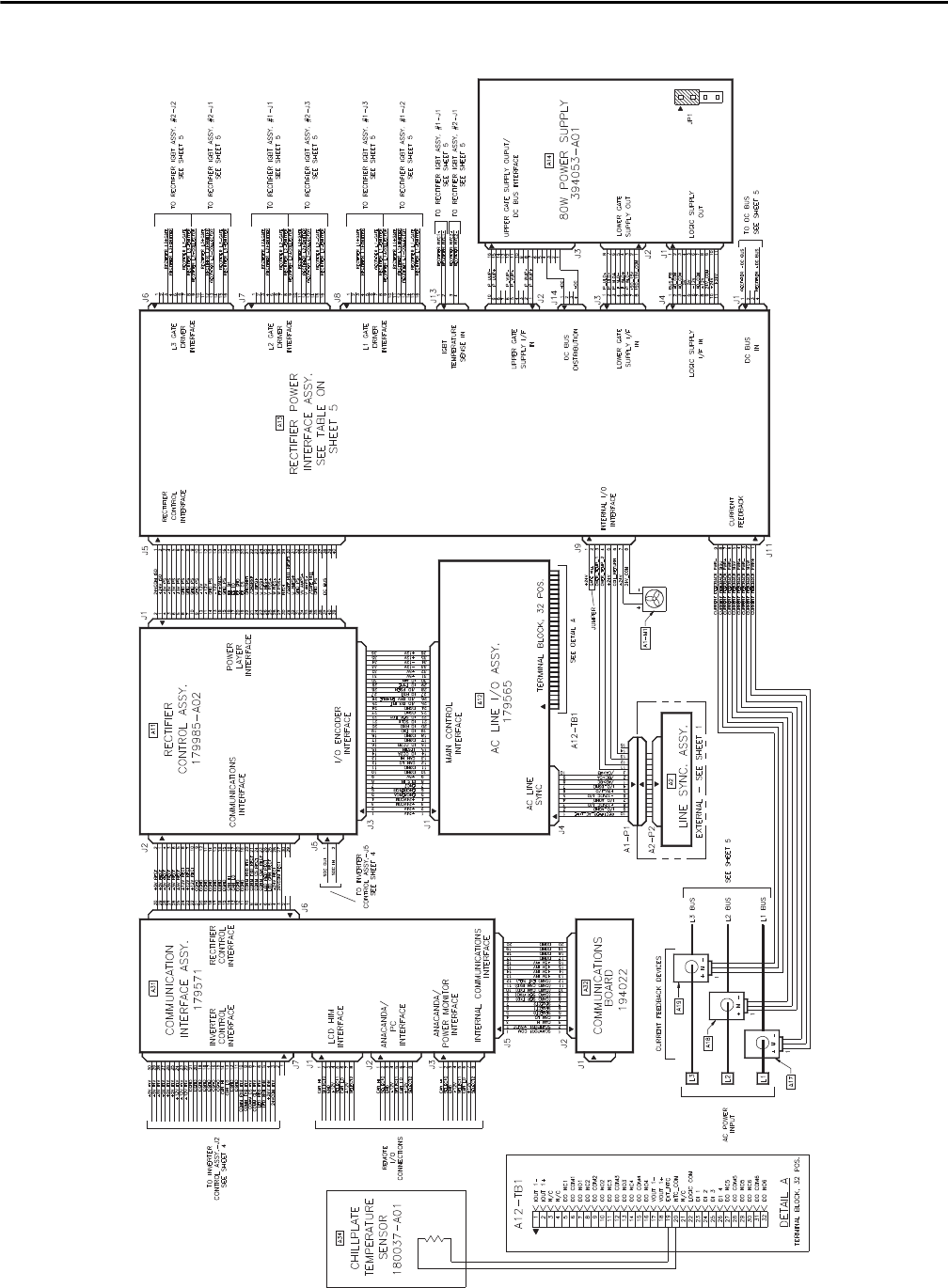
Figure 106 - Power Module Rectifier Wiring Diagram (Frame 3 - sheet 3)