Owner's manual

Table Of Contents
Rockwell Automation Publication D2-3518-3 - May 2013 249
Appendix C
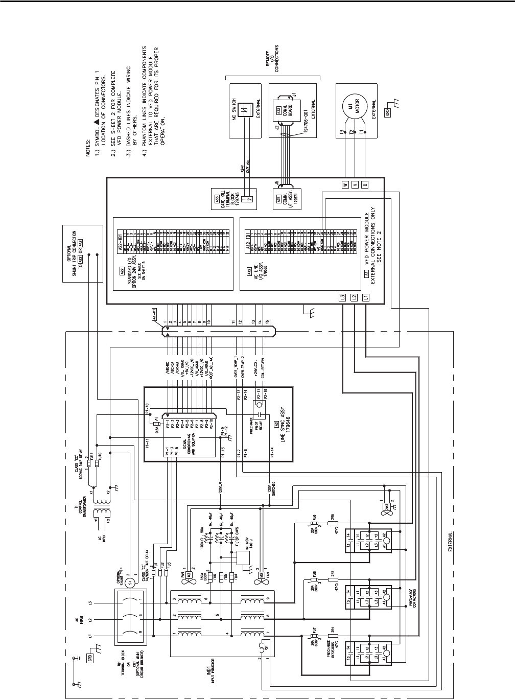
Figure 104 - Power Module Wiring Diagram (Frame 3 - sheet 1)