Owner's manual

Table Of Contents
Rockwell Automation Publication D2-3518-3 - May 2013 17
Chapter 2
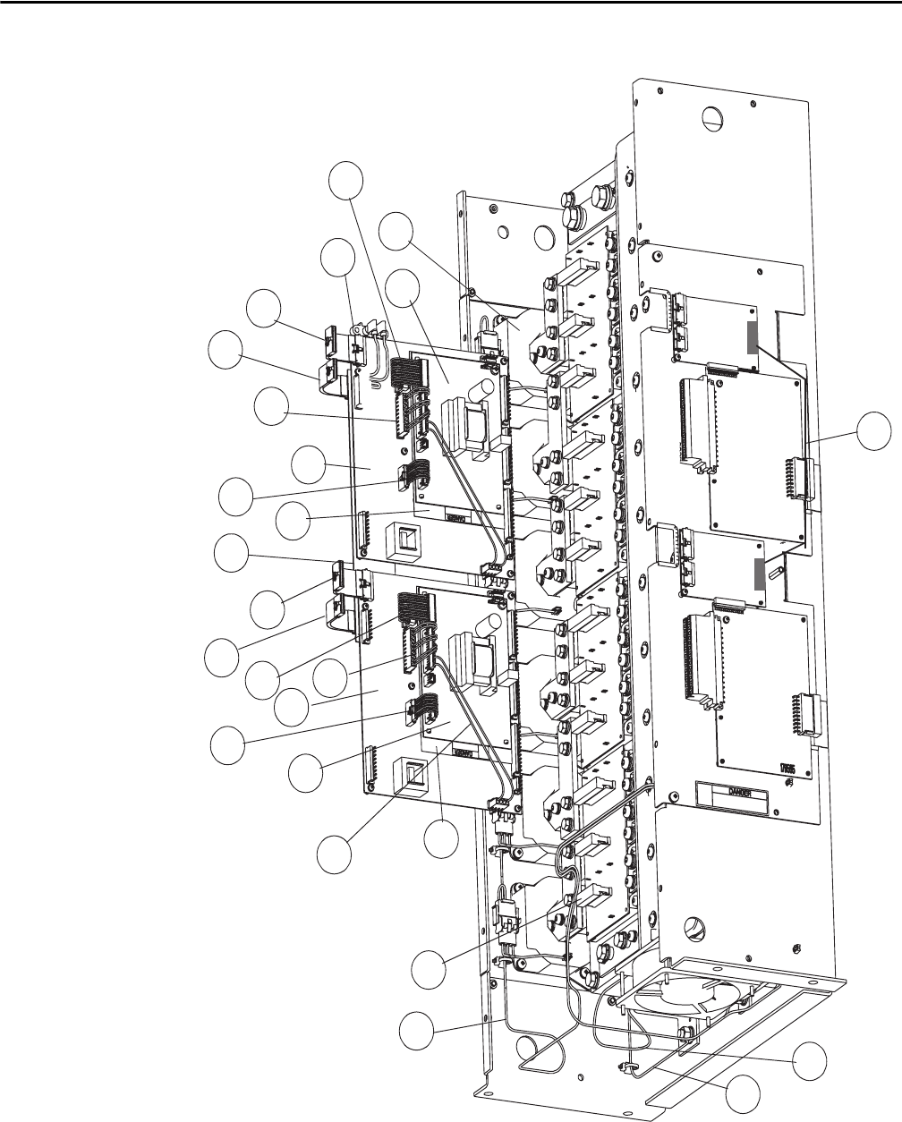
Figure 3 - Power Module Component Locations - Door Open (Frame 3)
15
16
13
2
14
12
8
10
4
4
10
3
7
7
1
1
9
9
11
6
5
6
5
7
25