Software Start-Up and Ref. Owner manual
Table Of Contents
- GV3000/SE AC General Purpose (V/Hz) and Vector Duty Drive, 1 - 20 HP, 230V AC Software Start-Up and Reference Manual D2-3387-5
- Important User Information
- Document Update
- Summary of Changes
- Table of Contents
- List of Figures
- List of Tables
- Preface
- Chapter 1 - Starting Up the Drive for Volts/Hertz Regulation
- Chapter 2 - Starting Up the Drive for Vector Regulation
- Chapter 3 - Using the Keypad/Display To Program, Monitor, and Control the Drive
- Chapter 4 - Programming Reference
- Chapter 5 - Troubleshooting the Drive Using Error Codes
- Appendix A - Alphabetical Listing of Parameters
- Appendix B - Record of User Parameter Settings
- Appendix C - Power Module-Dependent Parameter Default Values (230 V Series)
- Appendix D - Default Parameter Settings
- Appendix E - Configuring the Digital Inputs When the RMI Board Is Installed in the Drive
- Appendix F - Using the Terminal Strip Analog Input
- Appendix G - Drive Regulation Overview
- Back Cover / Publication D2-3387-5 July 2013

4-22
GV3000/SE 230 VAC Drive, Software Reference Version 6.04
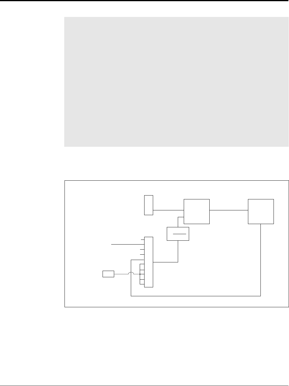
Figure 4.3 – Trim Reference Source Selection
P.014 Trim Reference Source
This parameter
specifies the source
for the trim
reference. Trim
reference is added to
the speed reference.
Refer to figure 4.3.
Parameter Range: 0 = No trim reference used
1 = Terminal strip analog input
2 = Option port trim reference register
3 = Maximum speed
4 = Torque current feedback (vector only)
5 = RMI board analog input
6 = RMI board frequency input
7 = Switched RMI board analog input or frequency
input
8 = RMI outer loop PI block (Mode 1)
9 = RMI outer loop PI block (Mode 2)
Default Setting: 0
Parameter Type: Configurable
Refer also to parameters: P.015 Trim Gain Percentage
Selections 5 through 9 are available only if an optional RMI board is installed in the
drive. Refer to instruction manual D2-3341 for more information about the RMI
board.
P.000
Selected
Speed
Ref
Speed
Control
Loop
Torque
Controller
P.014
Torque Feedback
Terminal Strip
Analog Input
Option Port
Selected
Trim Ref
None
0
1
2
3
4
5
6
7
8
9
Max Speed
RMI
P.015
100
x