Manual

Chapter 30
Using a 9/Series Dual--Processing System
3
0
-
2
9
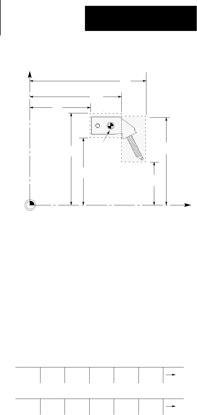
Example 30.9
Resulting Boundary from Example 30.8
Machine
Home
Process 1
Area 1
Area 2
+X
+Z
Process 1
Machine
Coordinate
System Zero Point
(Both Processes)
19”
15”
11”
18.5”
13”
19.5”
23”
12608-I
The control can save all of the information that is entered in the
interference tables as a backup. This is done by the control generating a
program consisting of G10 blocks. These G10 blocks contain the
boundary numbers and their respective interference boundary values. Any
time you run this program, the set of values contained in these G10 blocks
replaces the current values in the interference tables. See page 30-27 for
details on the format of this G10 program.
The interference table program can be saved in control memory as a
program, or it can be sent to a peripheral device. The interference tables
can be easily setup again by executing this program in the appropriate
process.
To back up the interference tables, follow these directions:
1. Press the {SYSTEM SUPORT} softkey.
(softkey level 1)
PRGRAM
MANAGE
FRONT
PANEL
MACRO
PARAM
PRGRAM
CHECK
SYSTEM
SUPORT
OFFSET ERROR
MESAGE
PASS-
WORD
SWITCH
LANG
30.5.4
Backing Up Interference
Tables