Manual

Chapter 30
Using a 9/Series Dual--Processing System
3
0
-
2
5
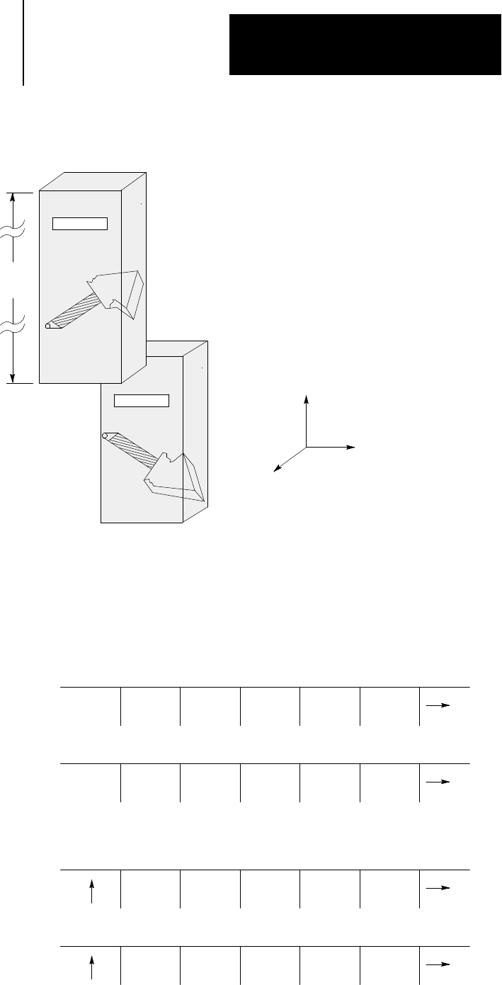
Figure 30.12
Protecting Additional Axes with Interference Checking
Process 2
Process 1
W
Z
X
Though only X andZ definethis interferencearea,
some protection is alsoofferedto Wsince an X or Zcollision
would be detected anytime W wouldcollide. This protection,
however, will cause thecontrol todetect a collisioneven if
sufficient clearanceexists onthe Waxis. Disable interference
checking when it is necessaryto overlapa third axis.
No limits
for theW
axis
12607-I
To manually enter values into the interference checking tables, follow this
procedure:
1. Press the {SYSTEM SUPORT} softkey.
(softkey level 1)
PRGRAM
MANAGE
FRONT
PANEL
MACRO
PARAM
PRGRAM
CHECK
SYSTEM
SUPORT
OFFSET ERROR
MESAGE
PASS-
WORD
SWITCH
LANG
2. Press the {PROGRAM PARAM} softkey.
(softkey level 2)
PRGRAM
PARAM
AMP DEVICE
SETUP
MONI-
TOR
TIME
PARTS
PTOM
SI/OEM
30.5.2
Entering Interference Values
Manually