Manual

Chapter 30
Using a 9/Series Dual--Processing System
3
0
-
2
3
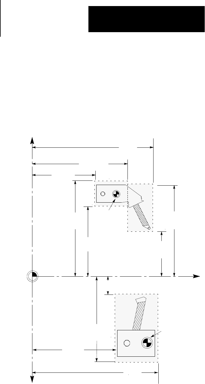
Important: Your system installer determines the relationship of the
machine coordinate systems between processes (relative location of zero
points and direction of positive travel) in AMP and through hardware.
This manual assumes the machine coordinate systems of both processes are
as shown in Figure 30.11. Refer to your system installer’s documentation
for details on how your machine coordinate systems are configured.
Figure 30.11
Measuring Interference Checking Areas
Machine
Home
Process 1
Area 1
Area 2
+X
Z
X Plus
Area 1
X Minus
Area 1
Z Plus
Area 1
Z Minus
Area 2
Z Minus
Area 1
X Plus
Area 2
X Minus
Area 2
Z Plus
Area 2
Machine
Coordinate
System Zero Point
(Both Processes)
Machine Home
Process 2
Area 1
+X
Process 2
Process 1
X Minus
Area 1
X Plus
Area 1
Z Plus
Area 1
Z Minus
Area 1
12606-I