Manual

Drilling Cycles
Chapter 26
26-29
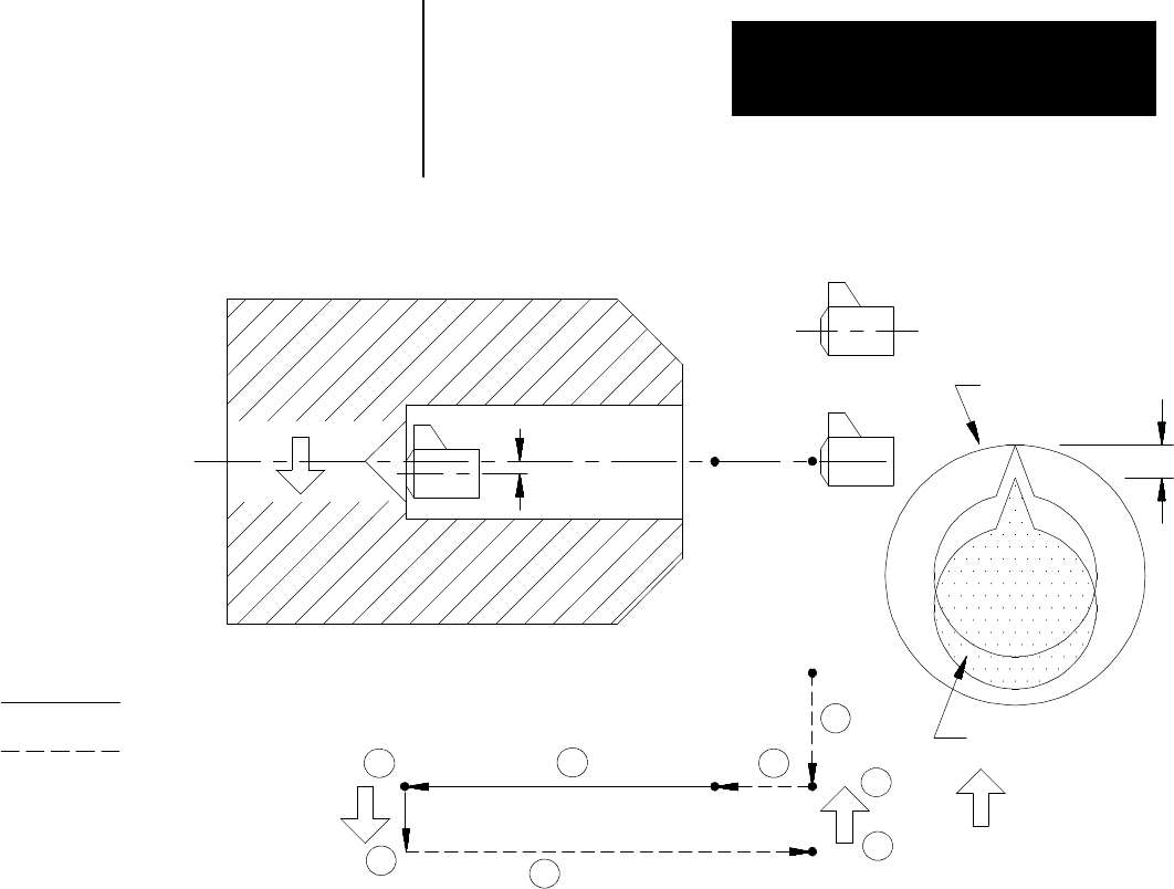
Figure 26.12
G86.1: Boring Cycle, Tool Shift
Q
Spindle or live tool oriented
and tool shifted
Shift
R point level
Initial point
level
8
7
1
23
6
4
Q
Shift
5
Hole bottom
Spindle orient after
dwell at Zpoint level
to position tool for
removal
Cutting feed
Rapid feed
Shift
Bored hole
In the G86.1 boring cycle, the control moves the axes in this manner:
1. The tool rapids to the initial point level above the hole location.
2. The boring tool then rapids to the R point level, slows to the
programmed cutting feedrate, and begins the boring operation.
3. The boring tool bores at the programmed feedrate to the
pre-programmed depth of the hole (defined by the Z-word in the
boring cycle block).
4. The control positions the spindle or live tool at the bottom of the hole
in a particular orientation, determined by the system installer in AMP.
5. To prevent the boring tool from damaging the sides of the bored hole
during retraction, the boring tool is shifted in either of two methods
which are explained below and illustrated in Figure 26.12.