Manual

Grooving/Cutoff Cycles
Chapter 23
23-5
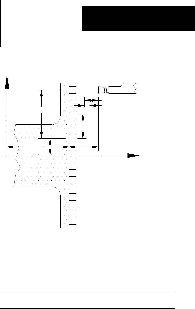
Figure 23.3
G76 Face Grooving Cycle Parameters
X
Z
Z inc.
K
e
X inc.
Z abs.
X abs.
I
The retraction amount e is set in AMP by the system installer.
Example 23.1
G76 Grooving Cycle
Absolute Programming Incremental Programming
G00X7.6Z5.3; G00X-1.8Z-1.2
G76X2.0Z3.6I-2.8K-0.8D0; G76X-5.6Z1.7I-2.8K-0.8D0;