Manual

Chamfering and Corner Radius
Chapter 16
16-6
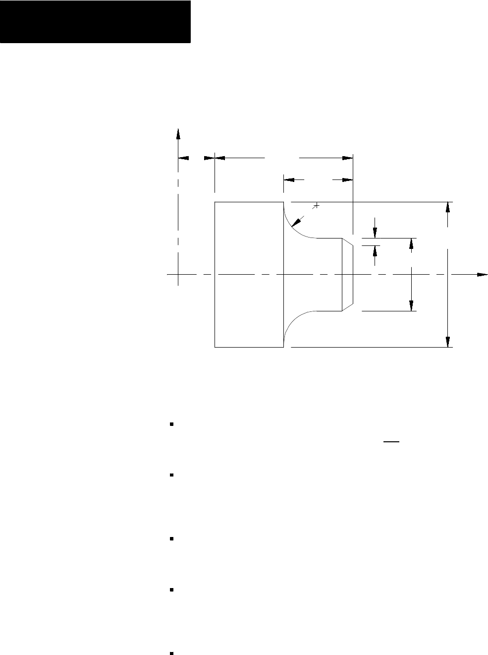
Figure 16.4
Results of Radius and Chamfer, Example 16.4
X
Z
40.0
20.0
2.0
R 5.0
10.0
20.0
5.0
When using chamfering and corner radius, remember:
If the control is executing in single block mode, the control enters the
cycle stop state after executing the first block and the adjacent chamfer
or corner radius.
If non-motion blocks are programmed separating the two intersecting
blocks for the corner radius and chamfer features, the control executes
the chamfer or radius immediately after the first block. The non-motion
blocks are executed after the control has executed the chamfer or radius.
Any negative signs programmed with the ,C- or ,R-words are ignored.
Use the absolute value of the word to cut the chamfer or radius. For
example ,C-10 is used as ,C10.
An error is generated if the length of a chamfer is larger than the
programmed length of the first or second move, or for corner rounding
if the programmed corner radius is so large that the tangent point on
both of the two programmed blocks does not exist.
An error is generated if you attempt to change planes between blocks
that are chamfer or corner radius blocks.
16.3
Considerations with
Chamfering and Corner
Radius