Manual

Coordinate Control
Chapter 13
13-8
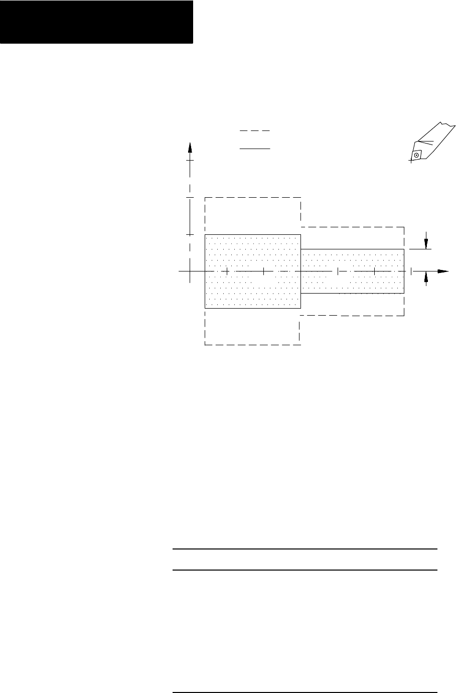
Figure 13.3
Results of Example 13.4
Original part contour
Contour after scaling
X axisonly by.5 in
G90 absolute mode
6
Z
X
10
20
30
20 40 60
When incremental mode (G91) is active, the control ignores the
programmed centers of scaling. The control performs scaling on the axes
programmed in the G14.1 block, but the scaling moves are referenced from
their current axis positions, not the programmed center of scaling or the
active coordinate zero point.
Important: The center of scaling may be specified in either incremental or
absolute mode (G90/G91) in the G14.1 block. But unlike other features in
the control, both modes cannot be programmed in the same block.
Example 13.5
Scaling with Incremental Mode Active
Program block Comment
G07 G90 G00 X30. Z60.;
radius mode, absolutemode
G91;
incremental mode
G14.1 X1.023 P.5;
scale X by .5(X value is ignored)
G01 X-18.;
feedrate move X toX21
Z-22.;
feedrate move Z to Z38
X8.;
feedrate move X toX25
G14;
cancel scaling
G00 X5. Z30.;
rapid return