Manual

Chapter
1
2
12-1
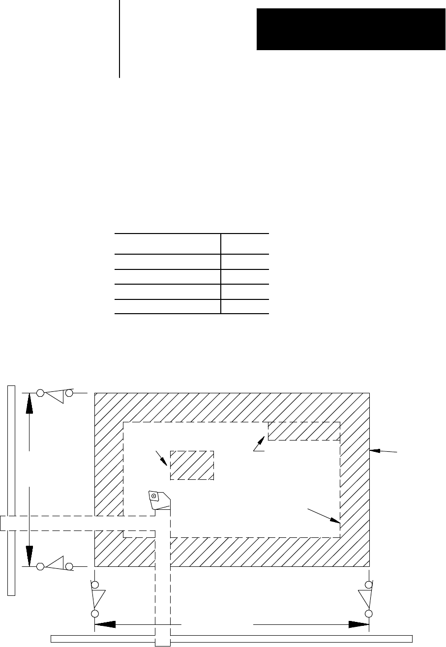
Overtravels and Programmable Zones
Overtravels and programmable zones define areas that restrict the movable
range of the cutting tool. The 9/Series control is equipped to establish two
overtravel areas and two programmable zones as illustrated in Figure 12.1.
Topic: On page:
Hardware overtravels 12-2
Software overtravels 12-3
Programmable zone 2 12-5
Programmable zone 3 12-7
Figure 12.1
Overtravels
Z axis travel
Limit switch
Hardware
overtravel
Software
overtravel
Programmable
zone 3
Programmable
zone 2
Cutting
tool
Limit switch
Limit switch
X axis
travel
Limit switch
12.0
Chapter Overview