User Manual
Table Of Contents

Publication 6155R-UM001G-EN-P - July 2007
Installation 25
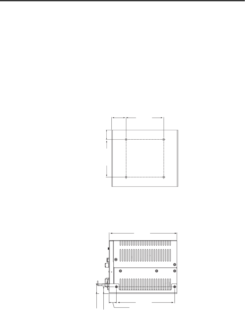
VESA Mount the 200R Computer
You can VESA mount the VersaView 200R computer to any of the
VersaView industrial monitors or other surface by using the VESA
mounting bracket provided.
1. Orient and attach the VESA mounting bracket to the four,
100 mm VESA holes that will be used to mount the computer.
Use four, M4 x 8 mm flathead screws with four, M4 x 3 mm nuts.
If attaching the bracket to the back of a VersaView monitor, the
nuts are not needed.
Dimensions are in mm (in.).
2. Attach the computer to the VESA mounting bracket by using
four, M3 x 6 mm screws.
Dimensions are in mm (in.).
100 [3.94]
38 [1.51]
100 [3.94]
25 [0.98]
150 [5.91]
129 [5.07]
16 [0.64]
15 [0.60]
22 [0.87