Owner manual
Table Of Contents
- J-3623-3 115 VAC High Power Output Module
- Warning Notices
- Table of Contents
- List of Figures
- 1.0 Introduction
- 2.0 Mechanical/Electrical Description
- 3.0 Installation
- 4.0 Programming
- 5.0 Diagnostics and Troubleshooting
- A Technical Specifications
- B Module Block Diagram
- C Field Connections
- D Related Components
- E Defining Variables in the Configuration Task
- Back Cover

3Ć3
.5 f
600v
COIL
2200 ohms
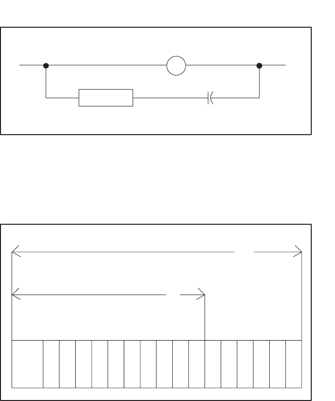
Figure 3.2 Ć RC Suppression Network for Inductive Loads
Step 5. Take the module out of its shipping container. Take it out of
the antiĆstatic bag, being careful not to touch the
connectors on the back of the module.
Step 6. Insert the module into the desired slot in the rack. Use a
screwdriver to secure the module into the slot. Refer to
figure 3.3.
P/S
0123456789101112131415
10
Typical 10 Slot Rack
16
Typical 16 Slot Rack
Figure 3.3 Ć Rack Slot Numbers
Step 7. Attach the field terminal connector (M/N 57C370, 61C505,
or 61C506) to the mating half on the module. Make certain
that the connector is the proper one for this module. Use a
screwdriver to secure the connector to the module.
Note that both the module and the terminal strip connector
are equipped with keys." These keys should be used to
prevent the wrong cable from being plugged into a
module in the event that the connector needs to be
removed for any reason and then reattached later.
At the time of installation, rotate the keys on the module
and the connector so that they can be connected together
securely. It is recommended that, for each module so
equipped, the keys on each successive module in the