Getting Started User guide

Publication 283D-QS001C-EN-P - July 2006
5
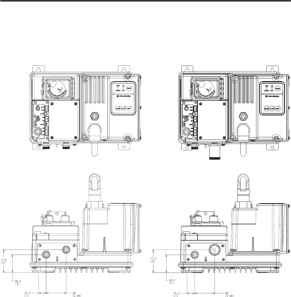
Dimensions are shown in millimeters (inches). Dimensions are not intended
to be used for manufacturing purposes. All dimensions are subject to
change.
Figure 4 Dimensions for NEMA Type 4X with ArmorConnect Connectivity
ArmorStart device with a 10 A short circuit protection rating ArmorStart device with a 25 A short circuit protection rating