User guide
Table Of Contents
- 2727-UM002D-EN-P, MobileView Guard G750 Terminal User Manual
- Important User Information
- Table of Contents
- Preface
- Chapter 1 - Overview
- Chapter 2 - Safety Precautions and Elements
- Chapter 3 - Terminal Connections
- Chapter Objectives
- Mounting and Connecting the Junction Box
- Accessing/Wiring the MobileView Connection Compartment
- Connecting a Computer using the RS-232 Serial Port
- Making an Ethernet Connection
- Using the PC Card Slot
- Connecting a Keyboard / Printer Using the IrDA Interface
- Installing the Mounting Bracket
- Chapter 4 - Configuring the MobileView Terminal
- Chapter 5 - Using RSView ME Station
- Chapter 6 - CE Thin Client Operating Instructions
- Chapter 7 - Windows CE Applications
- Chapter 8 - Maintenance and Troubleshooting
- A - Specifications
- B - Security Considerations
- C - Available Fonts for Terminal Applications
- Index
- Back Cover

Publication 2727-UM002D-EN-P
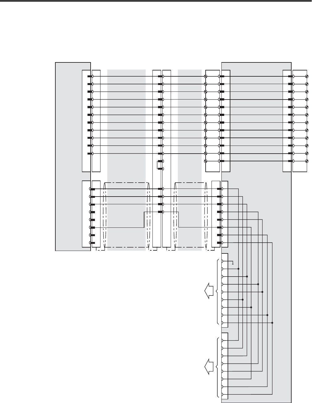
Terminal Connections 3-5
Junction Box Pinout and Wiring
1
2
3
4
6
8
9
10
11
7
7
8
12
17
1
3
4
5
6
2
1
2
3
6
13
14
15
16
1
2
3
4
5
6
7
8
9
2
3
4
5
6
7
8
1
2
3
4
5
6
7
8
1
5
11
9
10
To Ethernet Network
pink
black
green-brown
white-green
grey-pink
red-blue
brown
yellow
green
grey
violet
blue
white
orange
red
24V dc
GND_IN
E-Stop, circuit 1, pos.
E-Stop, circuit 1, neg.
E-Stop, circuit 2, pos.
E-Stop, circuit 2, neg.
Enabling Sw. circuit 1, pos.
Enabling Sw. circuit 1, neg.
Enabling Sw. circuit 2, pos.
Enabling Sw. circuit 2, neg.
Not Used
Not Used
TD+
TD-
RD+
RD-
Junction Box
Connection Cable
MobileView
Future Use
MobileView
pink
black
green-brown
white-green
grey-pink
red-blue
brown
yellow
green
grey
violet
blue
white
orange
red
Cable
Junction Box
MobileView
+24V
GND
ES1+
ES1-
ES2+
ES2-
ED1+
ED1-
ED2+
ED2-
K1
K2
K3
S19
S4
S1
S2
S3
X1
K2
K3
K4
X2
1
2
3
4
5
6
7
8
9
10
11
12
1
2
3
4
5
6
7
8
9
10
11
12