User Manual Manual
Table Of Contents
- 2706-UM017C-EN-P InView Communications User Manual
- Summary of Changes
- Table of Contents
- 1 - Introduction to InView Connectivity
- 2 - Install InView Communication Modules
- Mount Module to 2706-P42, 2706-P43 and 2706-P44 Displays
- Wire Communication Module to InView Display 2706-P42, 2706-P43, 2706-P44
- Mount Communication Kit to 2706-P72, 2706-P74, 2706-P92 and 2706-P94 Displays
- Wire Communication Kit to 2706-P72, 2706-P74, 2706-P92 and 2706-P94 Displays
- Use Communication Module with a 2706-P22R Display
- 3 - InView Communication Module Connections
- 4 - Application Guide
- ControlNet Communication and Tag Setup Screens
- DeviceNet Communication and Tag Setup Screens
- Data Highway Plus (DH+) Communication and Tag Setup Screens
- DH485 Communication and Tag Setup Screens
- EtherNet Communication and Tag Setup Screens
- RIO Communication and Tag Setup Screens
- Save or Download an Application File
- 5 - InView Communication Module Troubleshooting
- A - InView Communication Module Specifications
- Index
- Back Cover

Publication 2706-UM017C-EN-P - March 2006
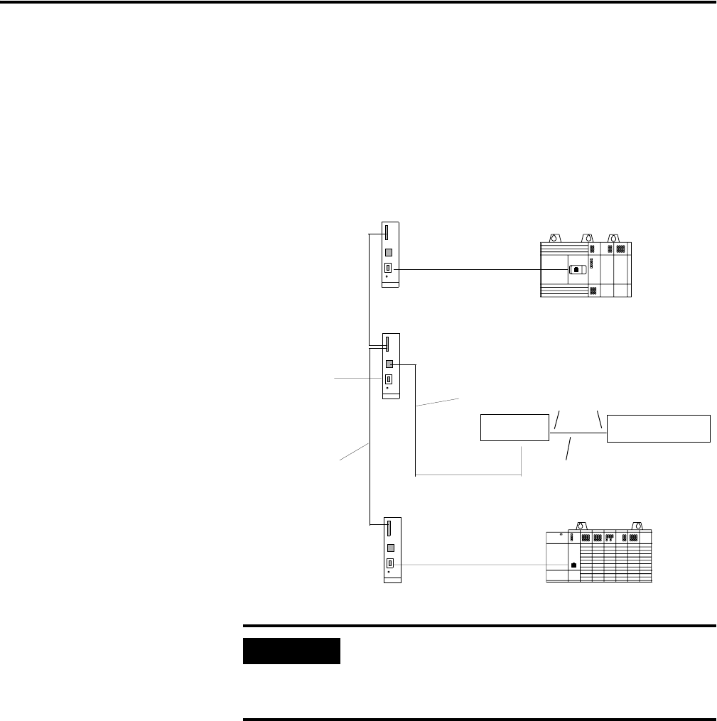
InView Communication Module Connections 3-13
Connect to a DH-485 Network
This section shows how to connect an InView DH-485 communication
module to multiple SLC controllers on a DH-485 network through the
AIC link coupler.
DH-485 Connections
IMPORTANT
The DH-485 network cable requires proper
shielding, grounding and termination. Refer to Data
Highway / Data Highway Plus / Data Highway-485
Cable Installation Manual, publication 1770-6.2.2.
Belden 9842
Power Source
or 1747-NP1
SLC Processor
SLC 5/01 Controller
Cable Catalog No.
1747-C10 Catalog No.
1747-C11 Catalog No.
1747-C20
Link Coupler Catalog No.
1747-AIC
InView Display
DH-485 Comm
Module
RS-232 Port
77156-094
2706-P22R
2706-P4x
2706-P7x
2706-P9x