Owner manual
Table Of Contents
- PowerFlex DC Stand-Alone Regulator (SAR)Field Circuit Board Installation Instructions
- What This Kit Includes
- Tools That You Need
- What You Need to Do
- Step 1: Remove Power
- Step 2: Remove the Covers
- Step 3: Remove the Control Circuit Board
- Step 4: Remove the Power Interface Circuit Board and Switching Power Supply Circuit Board
- Step 5: Remove the Field Circuit Board
- Step 6: Install the New Field Circuit Board and Reassemble the SAR
- Step 7: Document the Change
- Additional Resources
- Back Cover

Rockwell Automation Publication 23P-IN003A-EN-P - June 2011 3
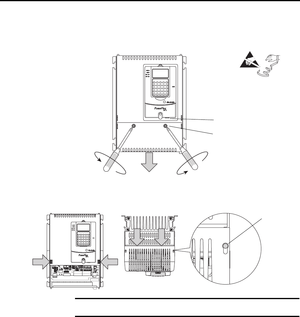
Step 2: Remove the
Covers
1. Disconnect the Device Peripheral Interface (DPI) cable from the HIM assembly (if
present).
2. Loosen the captive screws that secure the bottom front cover to the SAR, then slide
the cover down and off the chassis.
3. Press in on the sides at the bottom edge of the top cover and pull the cover toward you
until the cover is partially off the chassis. Then pull the top of the cover toward you
until the mounting pins align with the keyholes in the top of the cover. Then carefully
lift the cover off of the chassis.
4. Disconnect the HIM communication cable from the control board.
=
Disconnect DPI cable
Tightening torque:
1.5 N•m (13.3.lb•in)
When mounting
pins fits in
keyhole, lift cover
off SAR chassis.
IMPORTANT
The HIM assembly is connected to the control board via a communication cable.
Carefully set the top cover down next to the chassis.