User guide

Rockwell Automation Publication 23C-IN001B-EN-P - June 2013 163
3 Contactor Full Feature Bypass with Disconnect Package (Style B/N) Chapter 2
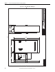
Figure 132 - 125…150 Hp, 460V AC Drives - NEMA/UL Type 1
95D01265
01
02
03
04
05
06
07
08
09
10
11
12
13
14
15
16
17
18
19
20
21
22
23
24
25
26
27
28
29
30
31
32
33
34
35
36
37
38
39
40
41
42
02
03
04
05
06
07
08
09
10
11
12
13
14
15
16
17
18
19
20
21
22
23
24
25
26
27
28
29
30
31
32
33
34
35
36
37
38
39
40
41
42
01
DATEREV. BY ECN/CR. NO.
APPROVAL
DESIGN REVIEW
FOR MANUF
ACTURING
AS SHIPPED
AS COMMISSIONED
BYDATE
SH.NEXT
NO.SH.
-
DWG.ENG.
TITLE
CHK. BY
NO.DATE DATE
DR. BY
DATE
THIS DRAWING IS THE PROPERTY OF ROCKWELL AUTOMATION, INC.
OR ITS SUBSIDIARIES AND MAY NOT BE COPIED, USED OR DISCLOSED FOR ANY
PURPOSE EXCEPT AS AUTHORIZED IN WRITING BY ROCKWELL AUTOMATION, INC.
11
OUTLINE DRAWING - PF400, STYLE B
125-150HP @ 460VAC
95D01265
JRF/ACI
2/3/05
JFH/ACI
2/3/05
11.69"
[296.86mm]
13.96"
[354.61mm]
23.50"
[596.90mm]
26.75"
[679.45mm]
28.25"
[717.55mm]
31.81"
[808.04mm]
35.31"
[896.94mm]
4.28"
[108.74mm]
2.50"
[63.50mm]
0.88"
[ 22.23mm]
F
F
O
ON
FOR DRIVE STATUS
PURGE
OFF
MOTOR
HAND
OUTPUT
ENABLE
DRIVE
DOC
DRIVE
AUTO DRIVE
MOTOR
DRIVE
BYPASS
TEST
BYPASS
TRIP
SEE DRIVE DISPLAY
BYPASS
RUN
OL
DIC
INTERLOCK
OPEN
READY
BC
3.25"
[82.55mm]
19.25"
[488.95mm]
38.50"
[977.90mm]
45.00"
[1143.00mm]
0.75"
[19.05mm]
48.50"
[1231.90mm]
50.00"
[1270.00mm]
0.41"
[ 10.32mm]
0.41"
[ 10.32mm]
7.75"
[196.85mm]
11.25"
[285.75mm]
14.75"
[374.65mm]
9.00"
[228.60mm]
2.50"
[63.50mm]
TYP. 2 PLC'S.
0.88"
[ 22.23mm]
PORT
MOD
NET A
NET B