Owner manual
Table Of Contents
- PowerFlex 22-COMM-P Profibus Adapter User Manual
- Summary of Changes
- Table of Contents
- Preface
- Chapter 1
- Chapter 2
- Chapter 3
- Chapter 4
- Chapter 5
- Chapter 6
- Chapter 7
- Chapter 8
- Appendix A
- Appendix B
- Appendix C
- Appendix D
- Glossary
- Index
- Back Cover / Publication 22COMM-UM005E-EN-P June 2012

D-4 SLC Ladder Logic Examples
Figure D.2 Drive 0 Control/Reference/Parameter Access Routine (continued)
Station 1 Speed Reference
The PowerFlex 40 parameter 38 - [Speed Reference] needs to be set to 5 ("RS485 [DSI] Port").
N19:1 is controlled elsewhere in the user program.
9
MOV
Move
Source N19:1
273<
Dest N20:1
273<
MOV
Station 1
Speed Reference
Write
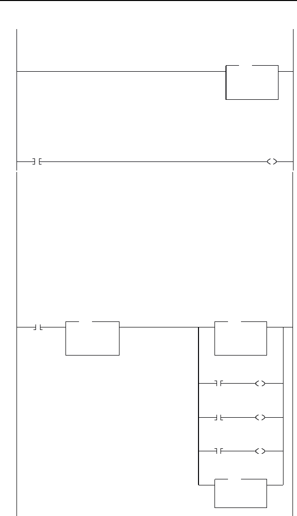
This section of the routine is only needed if the application needs to perform Parameter Protocol Reads or Writes to Station 1.
On power-up, initialize the Parameter Protocol routine.
10
S:1
15
First Pass
U
B3:19
15
Station 1
Par Prot
Messaging
Request
This circuit utilizes the Parameter Protocol. A REQUEST to Station 1 is processed only once at a time, and after each
RESPONSE from Station 1 a zero must be sent and received to 'handshake' before the next REQUEST/RESPONSE
transaction can take place. For example:
Send a param. read request --> Receive a parameter read response --> Send a "0" --> Receive a "0" --> [Transaction compl.]
If the RESPONSE PCA Word 1 (N10:2) is "0", then a REQUEST can be initiated.
Elsewhere in the user program these words must be loaded with message data prior to initiating the REQUEST.
N7:10 = RC = the operation to be performed ("1" = Read, "2" = 16-bit Write),
N7:11 = PNU = the parameter number to read or write
N7:12 = Subindex = the DPI port # ("0" = Host or PowerFlex drive, "5" = 22-COMM-P, etc.)
N7:13 = PVA #1 (the parameter value (high word)) - only used when writing parameters
N7:14 = PVA #2 (the parameter value (low word)) - only used when writing parameters
The four Parameter Protocol Words set up in the scanner are used to perform the Parameter Protocol:
N20:2 = contains RC (the operation to be performed) and PNU (the parameter number to read or write) combined
N20:3 = Subindex (the DPI port #)
N20:4 = P
VA #1 (the
parameter value (high word))
N20:5 = PVA #2 (the parameter value (low word))
B3:19/15 is turned ON elsewhere in the program after a REQUEST message (N7:10-14) is loaded. This causes one Param.
Protocol read or write to occur and B3:19/15 is turned OFF when the transaction is complete.
11
B3:19
15
Station 1
Par Prot
Messaging
Request
EQU
Equal
Source A N10:2
0<
Source B 0
0<
EQU
Station 1
RESPONSE
PCA Word
MOV
Move
Source N7:11
77<
Dest N20:2
0<
MOV
Station 2
PCA Word
N7:10
0
RC bit 0
L
N20:2
12
PCA Word
RC bit 0
N7:10
1
RC bit 1
L
N20:2
13
PCA Word
RC bit 1
N7:10
2
RC bit 2
L
N20:2
14
PCA Word
RC bit 2
COP
Copy File
Source #N7:12
Dest #N20:3
Length 3
COP
IND Word
(Subindex)