Design Guide User Manual
Table Of Contents
- Front Cover - Kinetix 7000 Drive Systems Design Guide
- Introduction
- Determine What You Need
- Kinetix 7000 System Examples
- 2090-Series Motor/Actuator Cables Overview
- Kinetix 7000 (400V ) with HPK-Series
- HPK-Series Motor Cable Combinations (460V motors)
- HPK-Series (460V) Performance Specifications with Kinetix 7000 (400V class) Drives
- Kinetix 7000 (400V class) Drives/HPK-Series (460V) Motor Curves
- HPK-Series Motor Cable Combinations (400V motors)
- HPK-Series (400V) Performance Specifications with Kinetix 7000 (400V class) Drives
- Kinetix 7000 (400V class) Drives/HPK-Series (400V) Motor Curves
- Kinetix 7000 (400V ) with MPL
- Kinetix 7000 (400V) with MPM
- Kinetix 7000 (400V) with RDD-Series
- Additional Resources
- Back Cover

Rockwell Automation Publication GMC-RM007A-EN-P - September 2011 5
Kinetix 7000 Drive Systems
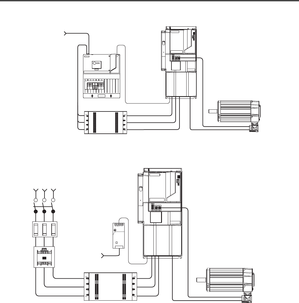
Kinetix 7000 AC Input Power Example (with LIM module)
Kinetix 7000 AC Input Power Example (without LIM module)
Three-phase
Input Power
24V DC
Control Power
2090-XXLF-TCxxxx
AC Line Filter
2094-xLxxS
Line Interface Module
(optional component)
2099-BM06-S, 2099-BM07-S,
2099-BM08-S Servo Drives
HPK-Series, RDD-Series, and
MP-Series (Bulletin MPL or MPM)
Servo Motors
External Shunt Module (optional component)
Refer to Rockwell Automation Encompass™ Partners
1606-XL
Power Supply
Input
Allen-Bradley
Kinetix 7000 Drive
2099-BMxx-S
24V DC
Control Power
1606-XLxxx
External Shunt Module (optional component)
Refer to Rockwell Automation Encompass Partners
Control Power
Supply Input
Line
Disconnect
Device
Magnetic
Contactor
Input
Fusing
Three-phase
Input Power
AC Line Filter
2090-XXLF-TCxxxx
(required for CE)
HPK-Series, RDD-Series, and
MP-Series (Bulletin MPL or MPM)
Servo Motors