Instruction Manual
Table Of Contents
- Front Cover
- About This Publication
- Important User Information
- Catalog Number Explanation
- Field Replaceable Components
- Remove/Replace the Front Cover
- Remove the Circuit Breakers
- Replace the Circuit Breakers
- Remove the Auxiliary Contact
- Replace the Auxiliary Contact
- Remove and Replace the Fuse Block
- Replace the (FB1) Fuses
- Remove the Cooling Fan
- Replace the Cooling Fan
- Block Diagrams
- Additional Resources
- Back Cover

Publication 2094-IN009C-EN-P — April 2008
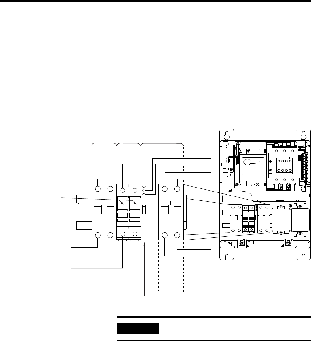
Removing and Replacing the Line Interface Module Internal Components 7
Remove the Circuit
Breakers
You will need a flat-blade screwdriver to remove circuit breakers.
Follow these steps to remove LIM module circuit breakers.
1. Verify that all power is removed from the LIM module as
described in Remove/Replace the Front Cover on page 5
.
2. Locate the Main VAC (CB1), Control VAC (CB2), and Brake - I/O
(CB3) circuit breakers and Fuse Block (FB1).
Fuse block FB1 is present only in the 2094-ALxxS, 2094-BLxxS,
and 2094-XL75S-Cx.
Locating CB3, FB1, CB2A, and CB2 (2094-ALxxS and 2094-XL75S-Cx)
1
3
1
3
1
3
2
4
2
4
24
WIRE_2
WIRE_1
WIRE_3
WIRE_4
WIRE_11
WIRE_12
COIL_A2
WIRE_7
WIRE_10
WIRE_9
12
14
11
WIRE_11
WIRE_12
WIRE_19
WIRE_18
FB1
CB3
CB2 (assembly)
Fuse Block
Control VAC
(CB2)
Brake and I/O
(24V ac)
Auxiliary Contact
(CB2A)
Line Interface Module
(2094-ALxxS module is shown)
Fuse access compartments
(pull down to open)
IMPORTANT
Main VAC (CB1) in 2094-ALxxS, 2094-BLxxS, and 2090-XL75S-Cx
models is not field replaceable.