Design Guide User guide
Table Of Contents
- Front Cover - Kinetix 2000 Drive Systems Design Guide
- Introduction
- Determine What You Need
- Kinetix 2000 System Examples
- 2090-Series Motor/Actuator Cables Overview
- Kinetix 2000 Drives with MPL
- Kinetix 2000 Drives with MPM
- Kinetix 2000 Drives with MPF
- Kinetix 2000 Drives with MPS
- Kinetix 2000 Drives with TLY
- Bulletin TLY Motor Cable Combinations
- Bulletin TLY (non-brake) Motor Performance Specifications with Kinetix 2000 Drives
- Bulletin TLY (brake) Motor Performance Specifications with Kinetix 2000 Drives
- Kinetix 2000 Drives/TLY-AxxxP-B (absolute high-resolution) Motor Curves
- Kinetix 2000 Drives/TLY-AxxxT-H (incremental) Motor Curves
- Kinetix 2000 Drives/TLY-Axxxx-x Motor Curves
- Kinetix 2000 Drives with MPAS
- Kinetix 2000 Drives with MPAR
- Kinetix 2000 Drives with MPAI
- Kinetix 2000 Drives with TLAR
- Kinetix 2000 Drives with LDC-Series
- Kinetix 2000 Drives with LDL-Series
- Additional Resources
- Back Cover

4 Rockwell Automation Publication GMC-RM006A-EN-P - September 2011
Kinetix 2000 Drive Systems
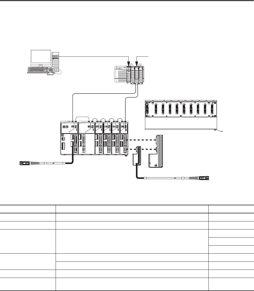
Kinetix 2000 System Examples
This system example illustrates how the required drive modules and accessories are used in a typical system.
Kinetix 2000 Drive System Example (SERCOS interface)
Optional Drive Accessories
Drive Accessory Description Cat. No.
2094 shunt module 50 W continuous shunt power (mounts on power rail) 2093-ASP06
2094 slot-filler module Fills unused slots on the 2094 power rail 2093-PRF
Bulletin 2094 line interface module
(LIM)
Replaces many of the common input power devices for your drive system
2094-ALxxS
2094-AL09
2094-XL75S-C2
2090 AC line filters
250V AC, 50/60 Hz, single-phase, EMC 2090-XXLF-TC116
520V AC, 50/60 Hz, three-phase, EMC 2090-XXLF-TC316
Bulletin 2090 cable clamp bracket kit Provides stress relief for motor power cable and electrical path from cable shield to machine ground 2090-K2KSCLAMP-4
External auxiliary encoders Allen-Bradley® sine/cosine and incremental external encoders
Bulletin 842A, 844D, 845H,
and 845T
0.2 m
(7.1 in.)
0.1 m (5.1 in.)
or
SERCOS Fiber-optic
Drive-to-Drive Cables
2093-AMxx
(single-wide)
AM Modules
2093-AC05-MPx
IAM Module
2093-PRSx
Power Rail
2093-PRSx
Power Rail
2094-K2CK-xxxx
Low-profile Connector Kits for
Motor Feedback and I/O
Bulletin 2090 Motor Feedback Cables
Bulletin 2090 Motor Power Cables
2093-AMxx
(double-wide)
AM Module
2090-SCxxx-x
SERCOS Fiber-optic Cables
Logix SERCOS interface Module
Logix Controller Platform
(ControlLogix® controller is shown)
RSLogix™ 5000
Software
Logix Controller Programming Network