Owner's manual

42053-005-01 (1)
Printed in U.S.A.
Specifications
Caractéristiques
Spezifikationen
Características
Rated Insulation Voltage (Ui)
Tension d'isolation nominale (Ui)
Nennprüfspannung (Ui)
Tensión nominal de aislamiento (Ui)
Voltaggio di isolamento nominale (Ui)
Voltagem Nominal de Isolamento (Ui)
300V
Rated Operating Voltage (Ue)
Tension d'emploi assignée (Ue)
Nennbetriebsspannung (Ue)
Tensión nominal de trabajo (Ue)
Voltaggio di isolamento di esercizio (Ue)
Voltagem Nominal de Operação (Ue)
24 - 240 VAC, 50/60 Hz
24 - 240 VDC
Power at Rated Operating Voltage
Puissance à la tension nominale de service
Leistung bei Nennbetriebsspannung
Alimentación en tensión nominal de trabajo
Alimentação na voltagem nominal de operação
Corrente alla tensione nominale di esercizio
24 VAC 0.8 W
120 VAC 0.8 W
240 VAC 1.0 W
Rated Impulse Withstand Voltage (U imp)
Tension de tenue aux ondes de choc (U imp)
Nennimpulsspannungsfestigkeit (U imp)
Tensión nominal no disruptiva de impulso (U imp)
Voltagem (U imp) nominal resistente ao impulso
Tensione nominale di tenuta a impulso (U imp)
2.5 kV
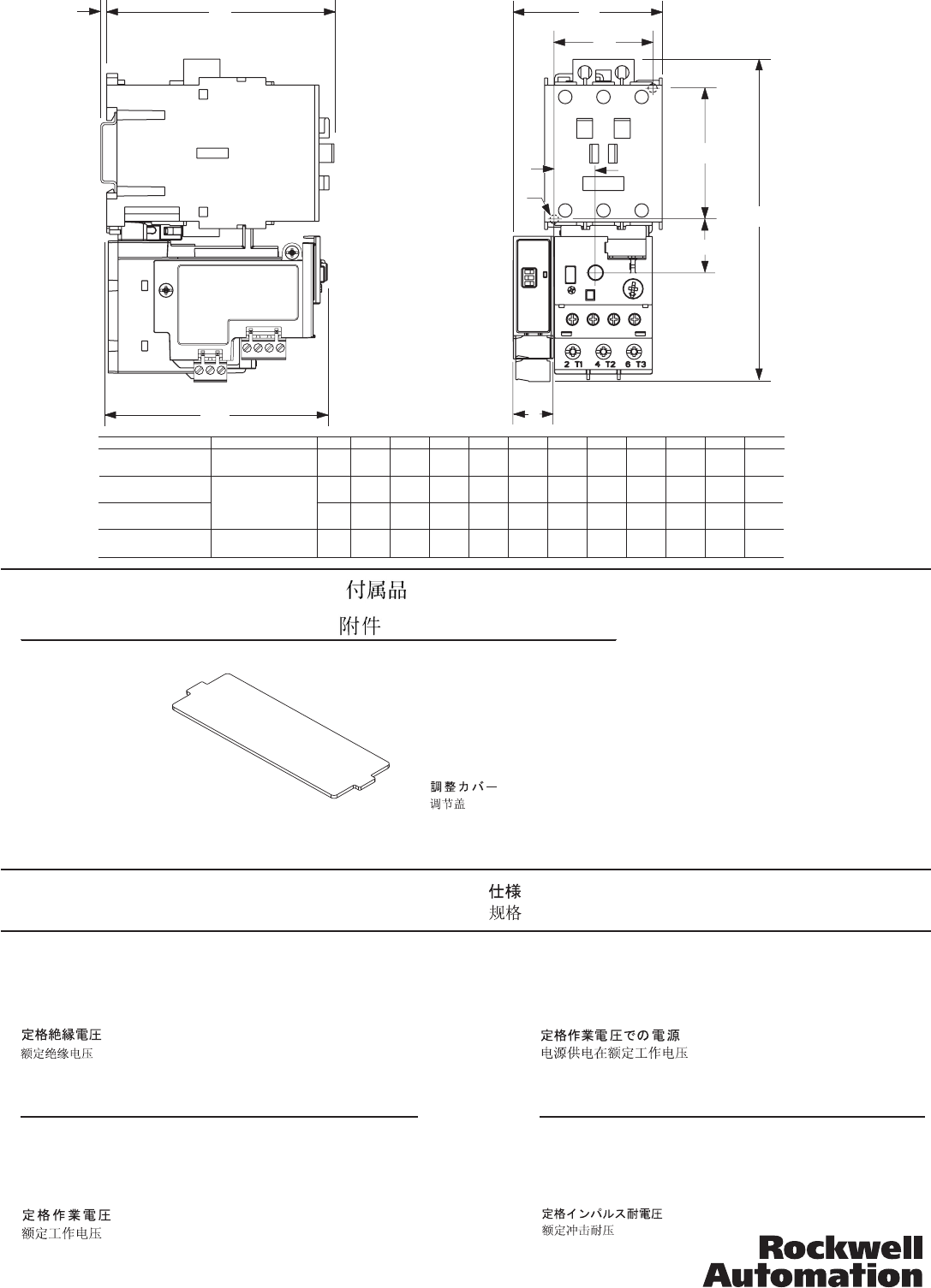
Accessory
Accessoire
Zubehör
Accesorio
Acessório
Cat 193-EMC
Adjustment Cover
Couvercle de réglage
Abdeckung für Einstellelemente
Cubierta de los ajustes
Tampa do ajuste
Copertura pannello di regolazione
Accessori
A
F
G
B
D
E
K
L
H
C
J
mm
(in)
mm
(in)
mm
(in)
mm
(in)
E1 PLUS CAT. NO.
193*-EE_B
193*-EE_E
193*-EE_D
CONTACTOR CAT. NO.
100-C09, -C12,
-C16, -C23
100-C30, -C37
100-C43
100-C60, -C72, -C85
A
63
(2.48)
63
(2.48)
67.5
(2.66)
90
(3.54)
B
148
148
148
(5.83)
(5.83)
(5.83)
191.6
(7.54)
C
85.2
(3.35)
101.2
(3.98)
101.2
(3.98)
120.4
(4.74)
D
24.5
24.5
24.5
(.96)
(.96)
(.96)
29
(1.14)
E
23.8
(.94)
13.9
13.9
(.55)
(.55)
18.4
(.74)
F
35
(1.38)
35
(1.38)
45
(1.77)
55
(2.16)
G
60
(2.36)
60
(2.36)
60
(2.36)
100
(3.94)
H
86.5
(3.40)
104
(4.09)
104
(4.09)
126
(4.94)
J
2
(.08)
2
(.08)
2
(.08)
2
(.08)
K
4.5
(.17)
4.5
(.17)
4.5
(.17)
5.4
(.21)
L
18
(.71)
18
(.71)
18
(.71)
18
(.71)
Specifiche
Especificações
(U imp)
(U imp)
(Ue)
(Ue)
(Ui)
(Ui)
8-1/2"
PAGE 2
PAGE 1
11"
8-1/2"
PAGE 4
PAGE 5
8-1/2"
PAGE 3
PAGE 6
66
BUL. 193 MCS-E1 PLUS
OVERLOAD RELAY PTC THERMISTOR
ACCESSORY MODULE
INSTALLATION INSTRUCTION SHEET
1
1025227
42053-005
OF
N/A
N/A
N/A
REVISION
AUTHORIZATION
DR.
CHKD.
APPD.
DATE
DATE
DATE
E - DOC
LOCATION: MILWAUKEE, WISCONSIN U.S.A.
B-vertical.ai
DWG.
SIZE
SHEET
B
1234 56 78
A
B
C
D
E
F
G
H
REFERENCE
DIMENSIONS APPLY BEFORE
SURFACE TREATMENT
(DIMENSIONS IN INCHES)
TOLERANCES UNLESS
OTHERWISE SPECIFIED
.XX:
.XXX:
ANGLES:
42053
----------- -----------
-----------
-----------
-----------
-----------
THIS DRAWING IS THE PROPERTY OF
ROCKWELL AUTOMATION, INC.
OR ITS SUBSIDIARIES AND MAY NOT BE COPIED,
USED OR DISCLOSED FOR ANY PURPOSE
EXCEPT AS AUTHORIZED IN WRITING BY
ROCKWELL AUTOMATION, INC.
PART
NO.
MATERIAL
CHG.
CHAR.
SIZE
FLAT FOLD
-01
1
TWO SIDES PRINTED
25-1/2" W x 11" H
BODY STOCK WHITE
BODY INK BLACK
4-1/4" W x 2-3/4" H