Owner manual

Table Of Contents
Publication 1794-UM066A-EN-P - February 2012
Install Your FLEX I/O Adapter 13
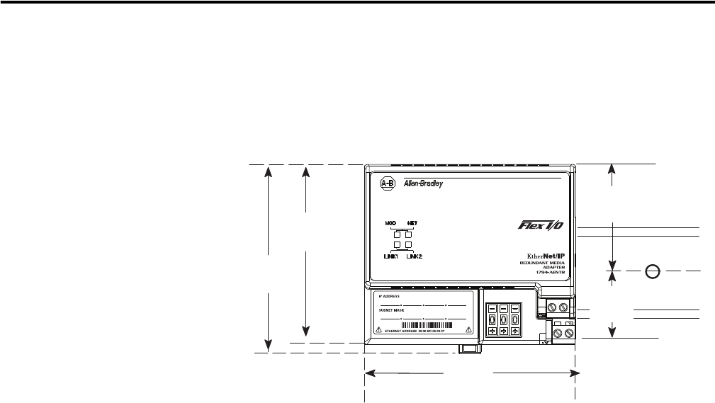
Mounting Dimensions
The module has the following mounting dimensions.
45826
1794-AENTR shown
Millimeters
(Inches)
80.4
(3.16)
87.4
(3.44)
94
(3.70)
1794-AENTR, 1794-AENTRXT
87.4 H x 94W x 92D
(344H x 3.7W x 3.6D)
50
(1.96)
30.4
(1.19)