Installation Instructions Manual

AC (120/220V) 16A Power Supply 5
Publication 1771ĆIN056B EN-P - December 2001
Before installing the power supply, you should:
• mount the I/O chassis that the power supply will be connected to.
See the Universal I/O Chassis Installation Data (1771-2.210) for
information on mounting the I/O chassis.
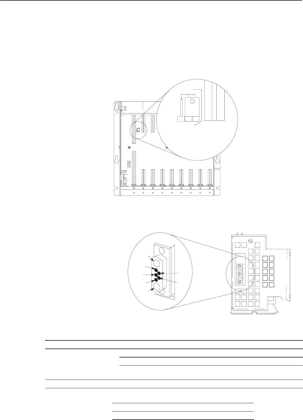
• set the power supply configuration jumper on the I/O chassis.
The 1771-P7 is an external power supply. Set the configuration
jumper to the N position.
Using
Power Supply
Module in
the Chassis?
12620ĆI
The power supply has a D-shell power connector that provides
power to the I/O chassis backplane.
A1
3
4
5
A2
1
2
A1 backplane common
A2 backplane +5V dc
1 no connection
2 backplane processor enable
3 backplane +5V dc sense
4 backplane signal ground sense
5 no connection
bottom view of power supply
13445
If you have this I/O chassis Use this power cable
1
To connect a 1771ĆP7 mounted
1771ĆA3B
1771ĆCP2 within 1.52m (5ft) of the I/O chassis
1771ĆA1B, ĆA2B, ĆA3B1, or ĆA4B 1771ĆCP1 within 0.32m (1.04ft) on the leftĆside of the I/O chassis
1771ĆCP2 within 1.52m (5ft) of the I/O chassis
1771ĆCP3
(right angle connector)
within 1.68m (5.5ft) of the I/O chassis
1
Power supply cable is not shipped with the power supply.
If you are mounting the power supply Go to
on the left side of a panelĆmounted I/O chassis
next section
separately from an I/O chassis page 9
Install the 1771ĆP7 and
Connect Backplane Power