Installation Instructions Manual
Manuals
Brands
Rockwell Automation Manuals
Equipment
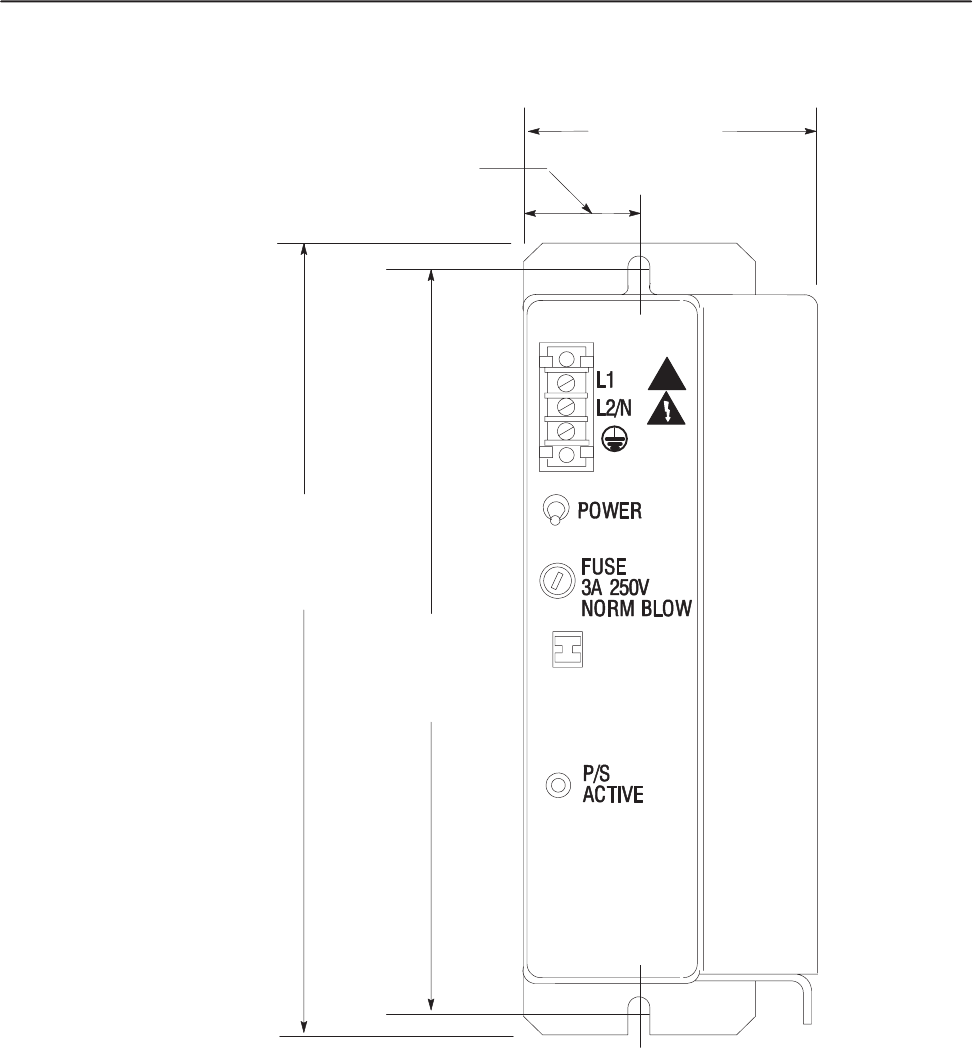
1771-P7 AC (120/220V) 16A Power Supply
7
8
9
10
11
12
13
14
15
16
!$
#
&
!
AC (120/220V) 16A Power Supply
13
%$
&
"
1
...
...
11
12
13
14
15
...
16