Installation Instructions Owner manual

5/20
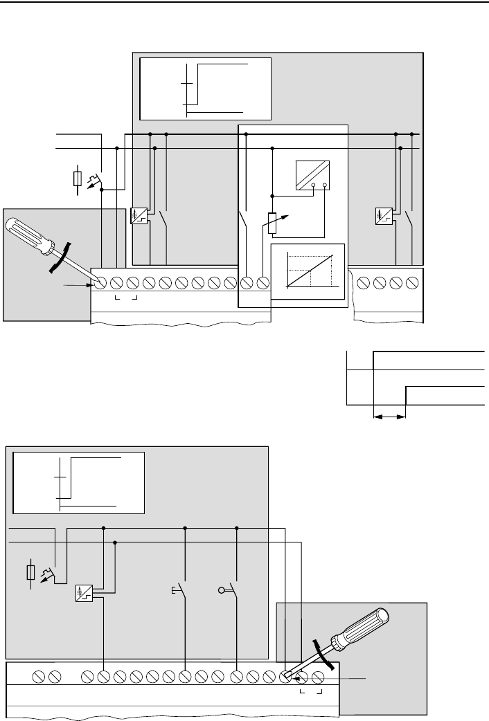
Standard connection, inputs – Standardanschluss, Eingänge – Raccordement
standard, entrées – Collegamento standard, ingressi – Conexión estándar, entradas
1760-IB12XOB8
+10 V
10 V
5V
0V
+24 V
0
5
10
0V
5 – 7 lb-in
3.5 mm
U
e
= 24 V H
(20.4 – 28.8 V H)
I
e
= 140 mA
+24 V
0V
l7, I8
> 1 A
l1
I2
I3
I4 I5
I6
I7 I8
1 f
15 V
0 F
5 V
24 V
I7, I8 = 2.2 mA
I9
I10
I11 I12
28.8 V
24 V
I1–I6, I9–I12 = 3.3 mA
24 V H
Input 24 V H
h
COM
1760-L18BWB-...
RUN/STOP
Power on
5 s
U
e
5 – 7 lb-in
3.5 mm
U
e
= 24 V H
(20.4 – 28.8 V H)
I
e
= 140 mA
+24 V
0V
> 1 A
1 f 15 V
0 F 5 V
R10R9R8R7R6R5R4R3R2R1NC NC
R11
R12 +24V
28.8 V
R1–R12 = 3.3 mA; 24 V
Input 24 V H 24 V H
COM
Pub_IN002C_0907Brandlabel_AB_AWA1739.FM Seite 5 Donnerstag, 15. November 2007 6:35 18