User Manual
Table Of Contents
- 1756-UM532A-EN-P
- Important User Information
- Table of Contents
- Purpose of This Manual
- Preface
- 1756-DH485 Module Overview
- Overview of the DH-485 Network
- Introduction
- DH-485 Network Description
- DH-485 Network Protocol
- DH-485 Token Rotation
- DH-485 Network Initialization
- Devices that Use the DH-485 Network
- 1747-AIC Isolated Link Coupler for DH-485
- 1761-NET-AIC Advanced Interface Converter Product Overview
- Operating Modes
- Device Compatibility
- Misconception about the 1761-NET-AIC Converter
- 1747-UIC USB to DH-485 Interface Converter
- Example System Configuration
- Important Planning Considerations
- Additional Resources
- Use Data Highway 485 Network
- Use RSLinx Software to Create a Routing Table
- Communicate from an SLC 5/03 Controller to a Logix Controller over a DH-485 Network
- Communicate Between SLC Controllers over DH+ and DH485 Networks
- Communicate Between a PLC-5 Controller and a Remote SLC 5/03 Controller over Multiple DH-485 Networks
- Communicate from an SLC 5/05 Controller to an SLC 5/03 Controller over an EtherNet/IP Network
- Communicate to a SLC 5/03 Controller on a DH-485 Network
- Communicate from a Logix Controller to an SLC 5/03 Controller over EtherNet/IP and DH-485 Networks
- Specifications
- Troubleshoot the 1756-DH485 Module
- Index
- How Are We Doing?
- Rockwell Automation Support
- Backcover

Publication 1756-UM532A-EN-P - May 2006
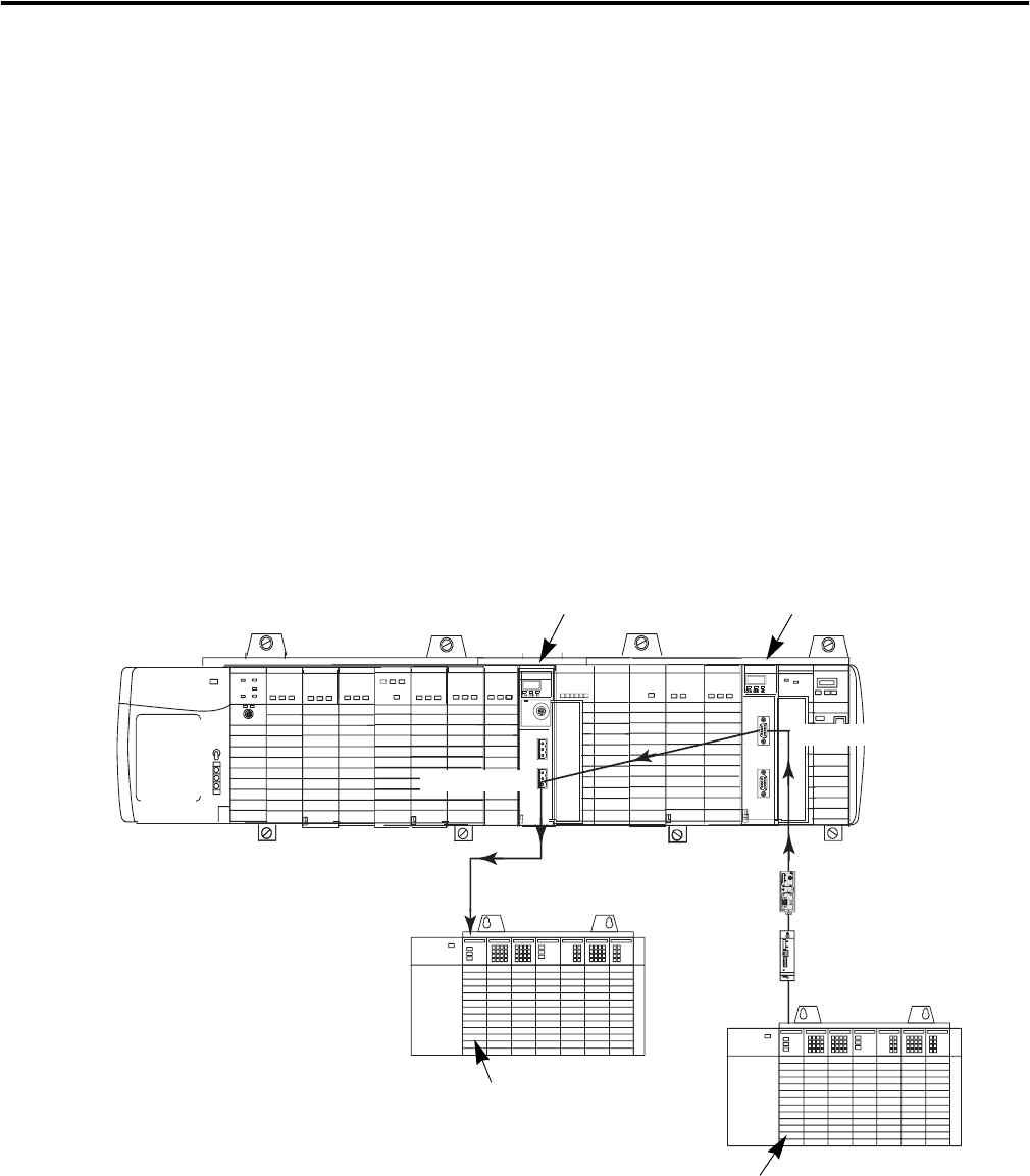
6-8 Communicate Between SLC Controllers over DH+ and DH485 Networks
SLC 5/03 Controller Sends a
Remote Message
In this example an SLC 5/03 controller initiates a remote message and sends it
to an SLC 5/04 controller.
Hardware Configuration
In this hardware configuration, an SLC 5/03 controller initiates a message to
an SLC 5/04 controller on a DH-485 network. (1)
• This SLC 5/03 controller connects to Channel A on the 1756-DH485
module. (2)
• The SLC 5/04 controller is connected to Channel B of the
1756-DHRIO module in the same rack as the 1756-DH485 module. (3)
• The SLC 5/04 controller receives a remote message from the SLC 5/03
controller through the 1756-DHRIO on the DH+ network. (4)
Communication Between Two SLC Controllers Over DH-485 and DH+ Networks
DH+/RIO
DH485
ControlLogix Controller
1756-DHRIO
1756-DH485
Channel A (2)
The SLC 5/03 controller
initiates the message.
(1)
DH485 network
communicating
through link coup lers.
SLC 5/04 Controller (4)
DH+ Network
Channel B (3)
44064
AIC+
AIC