Owner manual
Table Of Contents
- 1747-6.1, Data Table Access Module User Manual
- Important User Information
- Summary of Changes
- Table of Contents
- Preface
- 1 - Data Table Access Module Overview
- 2 - Installation and Power Up
- 3 - Module Setup Procedure
- 4 - Attaching to a Processor
- 5 - Monitoring and Modifying Data
- 6 - Quick Recall Functions
- 7 - Processor Control Functions
- 8 - Message Capability
- 9 - Troubleshooting
- A - Specifications
- B - SLC 500 Data Files and Logical Addressing
- C - Module Display Character Set
- D - Mounting Template
- Index
- Back Cover

8-18 Message Capability
Publication 1747-6.1
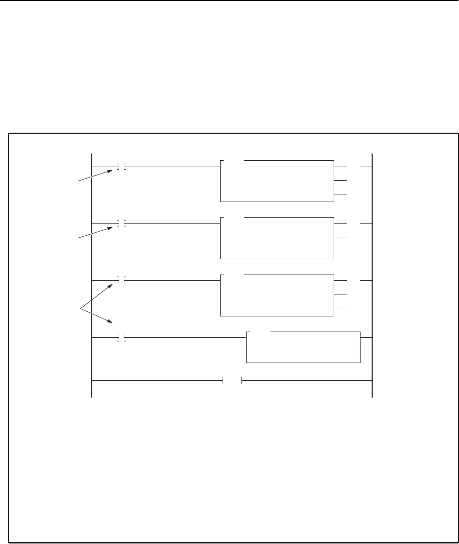
Application Example 2
Application example 2 uses a 12-word message instruction to enter a
value to a data file word. It also uses a timer and a clear message
instruction to clear the message from the display if data is not entered.
The 5/02 ladder logic program is shown on the next page. The data
monitor displays for the message instructions and the user defined
data files are shown on the following page. The procedure to display
the message is shown on page 8-20.
Example 2
0
I:1.0
0
MSG
READ/WRITE MESSAGE
Read/Write
Target Device
Control Block
Control Block Length
WRITE
485 CIF
N7:0
7
(EN)
(DN)
(ER)
1
13
(EN)
(DN)
N7:0
TON
TIMER ON DELAY
Timer
Time Base
Preset
Accum
T4:1
1.0
5
0
2
DN
(EN)
(DN)
(ER)
T4:1
MSG
READ/WRITE MESSAGE
Read/Write
Target Device
Control Block
Control Block Length
WRITE
485 CIF
N7:10
7
3
CLR
CLEAR
Dest
N7:0
0000000000000
000
4
END
DN
T4:1
12-word Write
Message instruction
for data entry
5-second on-delay
timer to clear the
display if data not
entered
One-word Write
Message
instruction to clear
display
Reset Message
control bits
Message
trigger input
Done Bit from
message in
rung 0
Timer Done Bit
Operation Notes
Rung 0
Input instruction I:1.0/0 initiates the message instruction.
This message prompts you to enter a new value. The 12-
word message instruction always displays an initial value
of 0. The Data Entry Destination Address is N10:20.
Rung 1
Input instruction N7:0/13 is the done bit from the message
instruction in rung 0. The done bit becomes true as soon
as the message is transmitted successfully. The timer will
increment whether data is entered or not.
Rung 2
After five seconds, the timer done bit initiates the
message clear instruction to clear the module display if
data has not already been entered. If data has been
entered, or the [ESC] key has been pressed, the display
is already clear.
Rung 3
This clear instruction is enabled by the timer done bit. It is
used to reset the message instruction control bits.
Rung 4
This is the endo fo the suer program.